EasyManua.ls Logo

Viessmann B1HE-199 - Overview of the Modules

Viessmann B1HE-199
128 pages
Print Icon
To Next Page IconTo Next Page
To Next Page IconTo Next Page
To Previous Page IconTo Previous Page
To Previous Page IconTo Previous Page
Loading...
93
6167 818 - 10
Vitodens 100-W, B1HE/B1KE Combi Installation/Service
Fault Messages
(continued)
Wiring Diagram
Fault Messages
(continued)
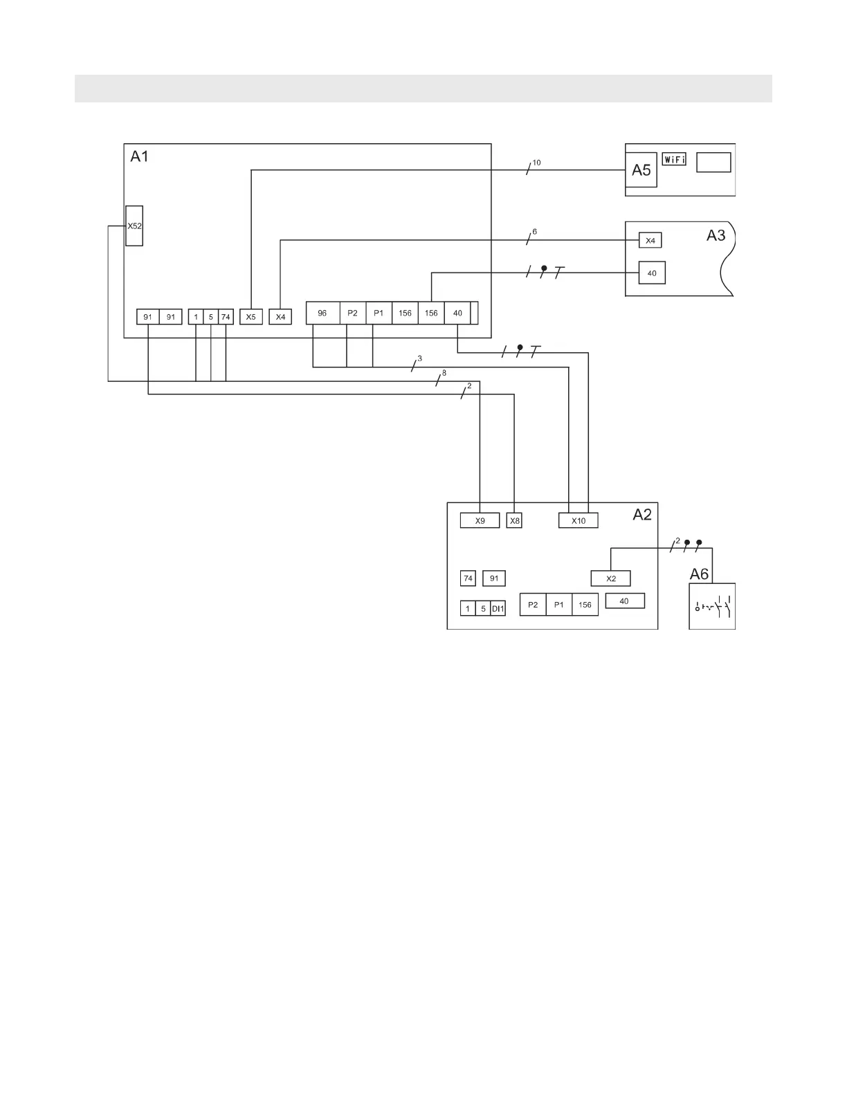
Overview of the Modules
Legend
A1 HMU heat management unit
A2 Wiring panel
A3 BCU burner control unit
A5 HMI programming unit with communication module
(TCU 200)
A6 ON/OFF switch

Table of Contents

Related product manuals