EasyManua.ls Logo

Viking RDSOE306SS - Lower Oven Wiring Schematic

Viking RDSOE306SS
60 pages
Print Icon
To Previous Page IconTo Previous Page
To Previous Page IconTo Previous Page
Loading...
© 2012 Viking Preferred Service
60
Wiring and Schematics
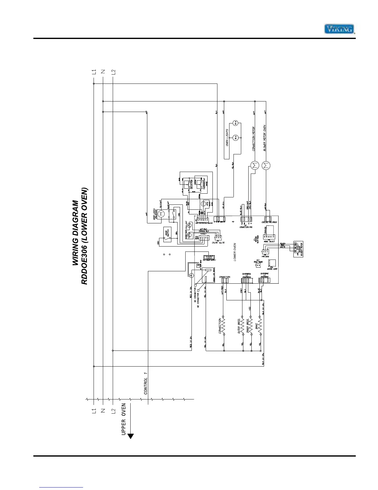
Wiring Schematic RDDOE306
Lower Oven

Table of Contents

Other manuals for Viking RDSOE306SS

Related product manuals