EasyManua.ls Logo

WAGNER Leopard 35-70 - Page 94

WAGNER Leopard 35-70
120 pages
Print Icon
To Next Page IconTo Next Page
To Next Page IconTo Next Page
To Previous Page IconTo Previous Page
To Previous Page IconTo Previous Page
Loading...
Operating manual Piston pump IceBreaker 40-200 ccm (Finishing)
14 Spare Parts
94 Order number 2333538 | Edition 03/2021
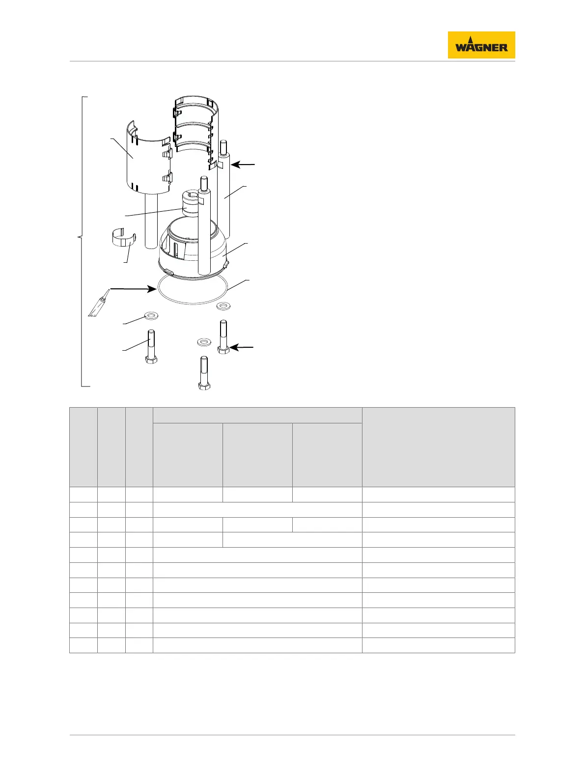
14.5.2 Connection Sets for 110-200 ccm
B_05263
3
2
1
4
5
6
7
8
9
10
A
A
Assembly with air motor and fluid section: see Chapter Overview of the Components [881]
Pos K Stk Order no. Designation
LM-FS 3
Puma 21-110
LM-FS 5
Leopard
35-150
Leopard
48-110
LM-FS 8
Leopard
26-200
1 1 2350031 2350033 2350036 Connection set LM-FS …
2 2 368532 Coupling cover stroke 150
3 1 367579 368529 2337924 Coupling
4 1 367530 368530 Spring
5 3 9920107 Washer, A12, DIN 125-1
6 3 9900157 Hexagon screws
7 1 9974116 O-ring
8 1 368531 Separating agent cup, stroke 150
9 3 368533 Threaded bolt
10 1 9998808 Mobilux® EP 2 grease
A 50 Nm; 37 lbft Tightening torque for pos. 6 and 9
= wearing parts
= Included in the service set of the fluid section PE/TG or PE/T or PE/L (see chapter Fluid
Sections [895]).

Table of Contents

Other manuals for WAGNER Leopard 35-70

Related product manuals