EasyManua.ls Logo

Water Process Solutions Encore 700 - Typical Installation Diagrams

Water Process Solutions Encore 700
128 pages
Print Icon
To Next Page IconTo Next Page
To Next Page IconTo Next Page
To Previous Page IconTo Previous Page
To Previous Page IconTo Previous Page
Loading...
ENCORE
®
700 METERING PUMP
WARNING: TO AVOID POSSIBLE SEVERE PERSONAL INJURY, WHEN HAZARDOUS CHEMICALS ARE PUMPED AND/OR ELEVATED
TEMPERATURES/PRESSURES ARE ENCOUNTERED, USE RIGID PIPE.
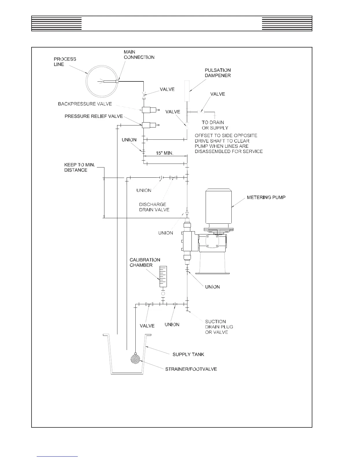
METERING PUMPS - TYPICAL INSTALLATION
- Suction Lift
440.400.110.030
ISSUE 1 2-98
WT.440.400.001.UA.IM.1012
21

Table of Contents