EasyManua.ls Logo

Water Process Solutions Encore 700 - Flooded Suction & Vent Riser

Water Process Solutions Encore 700
128 pages
Print Icon
To Next Page IconTo Next Page
To Next Page IconTo Next Page
To Previous Page IconTo Previous Page
To Previous Page IconTo Previous Page
Loading...
ENCORE
®
700 METERING PUMP
WARNING: TO AVOID POSSIBLE SEVERE PERSONAL INJURY, WHEN HAZARDOUS CHEMICALS ARE PUMPED AND/OR ELEVATED
TEMPERATURES/PRESSURES ARE ENCOUNTERED, USE RIGID PIPE.
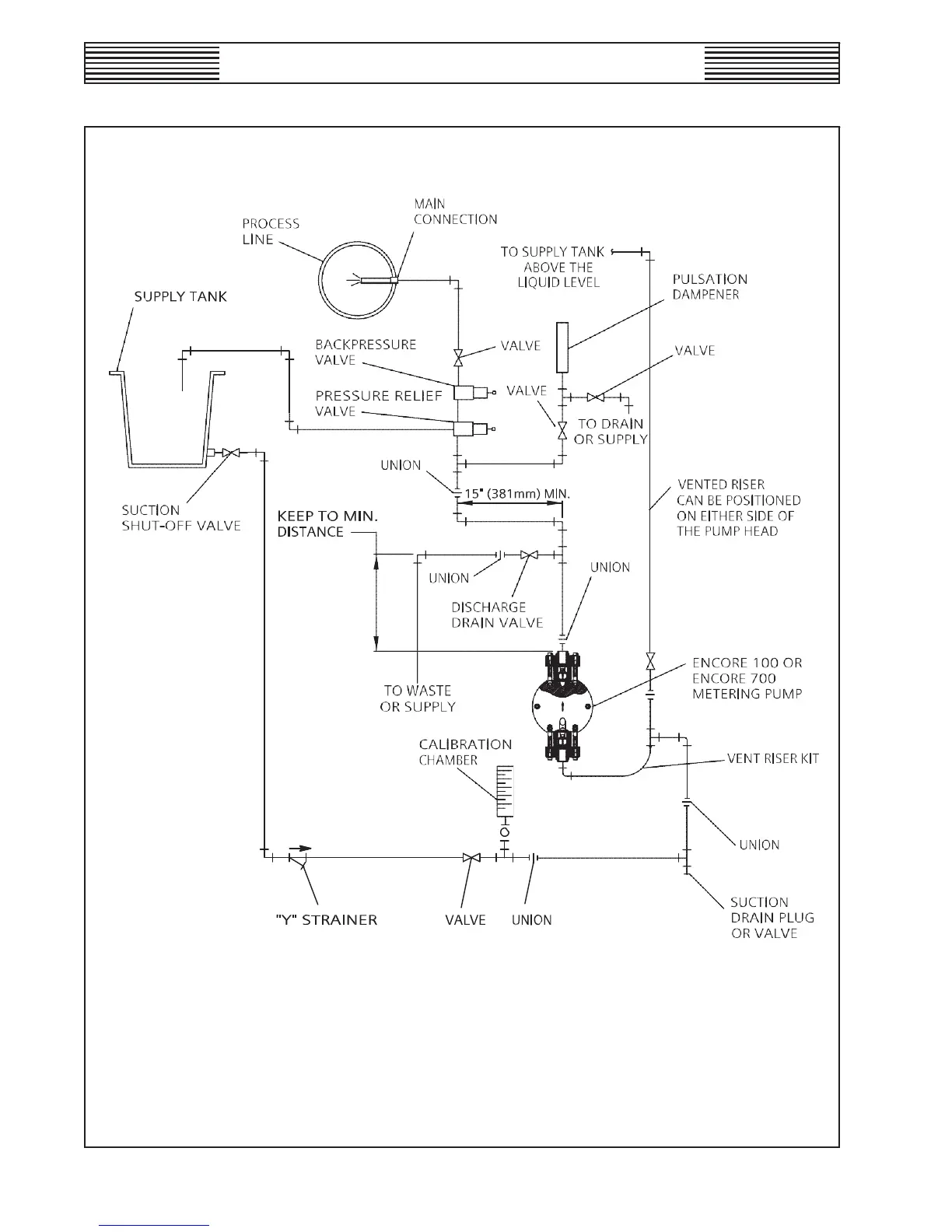
METERING PUMPS - TYPICAL INSTALLATION
- Flooded Suction & Vent Riser
440.400.110.050
ISSUE 1 2-06
WT.440.400.001.UA.IM.1012
23

Table of Contents