EasyManua.ls Logo

Water Process Solutions Encore 700 - Page 96

Water Process Solutions Encore 700
128 pages
Print Icon
To Next Page IconTo Next Page
To Next Page IconTo Next Page
To Previous Page IconTo Previous Page
To Previous Page IconTo Previous Page
Loading...
ENCORE
®
700 METERING PUMP
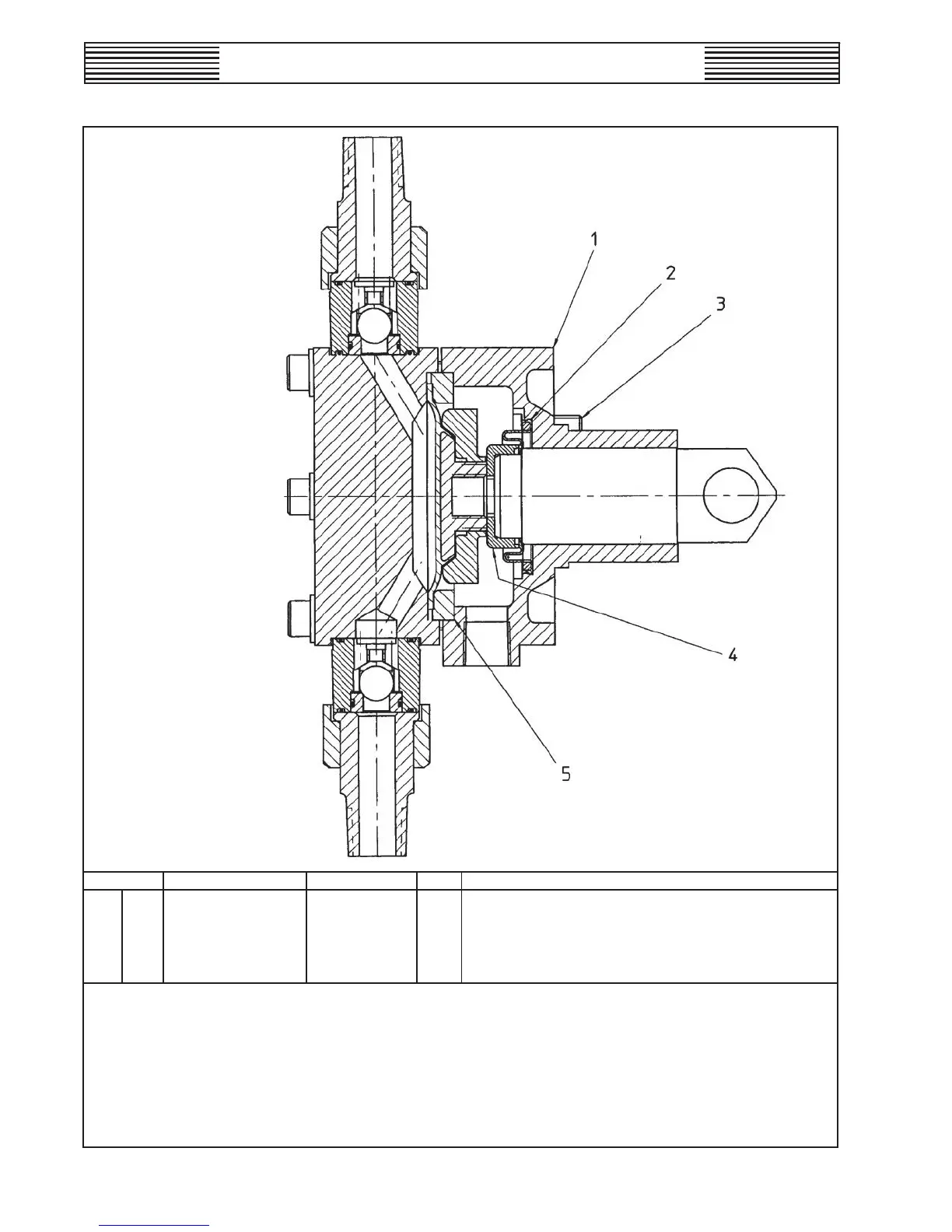
KEY NO.
LEGACY PART NO.
ALT PART NO.
QTY.
DESCRIPTION
*•
1
AQO5451
W2T367150
1
ADAPTER, 2" DIAPHRAGM
*•
2
AAB7205
W2T9156
1
SEAL, BELLOW, CROSSHEAD
3
AXS3583
W2T11181
4
SCREW, CAP, M8 x 25, SOCK. HD., 316SS
4
AJA5915
W2T11357
1
CLAMP, DIAPHRAGM, BELLOW
5
AIC5296
W2T11339
1
SPACER, 2" DIAPHRAGM
NOTES:
PART OF APQ4101 (W3T99942).
*
W3T108211 ADAPTER WITH PRE-INSTALLED BELLOW SEAL CAN BE ORDERED IN PLACE OF KEY NO.'S 1 & 2.
WHEN ORDERING MATERIAL, ALWAYS SPECIFY MODEL AND SERIAL NUMBER OF APPARATUS.
2” LIQUID END ADAPTER - PARTS
440.400.001.040
ISSUE 2 1-10
WT.440.400.001.UA.IM.1012
82

Table of Contents