EasyManua.ls Logo

WattMaster Auto-Zone Plus - Page 124

Default Icon
180 pages
Print Icon
To Next Page IconTo Next Page
To Next Page IconTo Next Page
To Previous Page IconTo Previous Page
To Previous Page IconTo Previous Page
Loading...
Section 4 Auto-Zone Plus
4-6 Start-Up and Troubleshooting
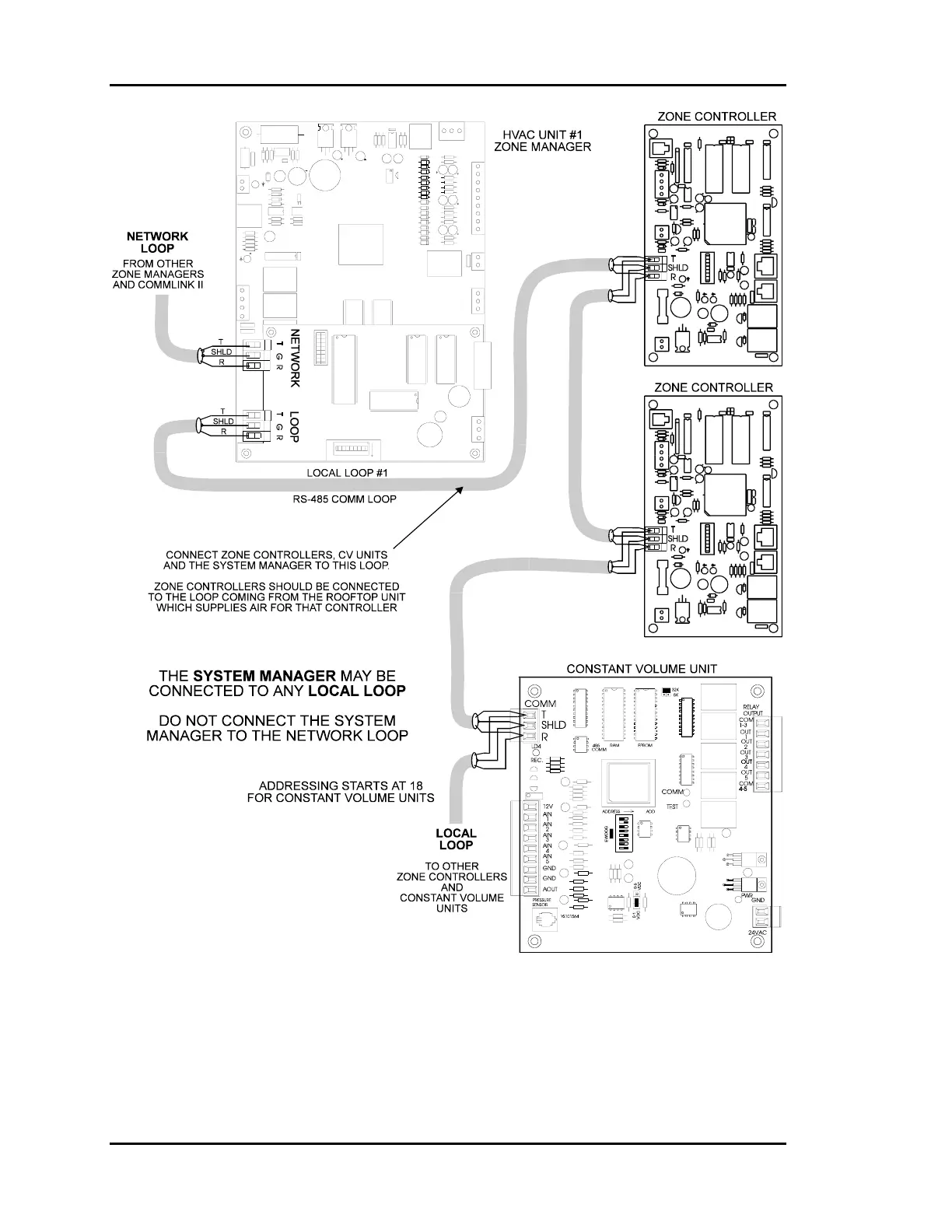
Figure 4-4: Local Loop Wiring
firealarmresources.com

Table of Contents

Related product manuals