EasyManua.ls Logo

WattMaster Auto-Zone Plus - Room Sensors

Default Icon
180 pages
Print Icon
To Next Page IconTo Next Page
To Next Page IconTo Next Page
To Previous Page IconTo Previous Page
To Previous Page IconTo Previous Page
Loading...
Section 2
Auto-Zone
Plus
2-24 Design Guide
Room Sensors
The Room Sensor uses a patented flush mount design to isolate the temperature sensing
element from the housing which mounts flush with the wall surface.
Room Sensors should be located on an inside wall away from direct sunlight or heat
producing equipment such as computers, copiers, etc. Such devices can adversely affect
the accuracy of the sensor. Although the sensor eliminates most of the effects of thermal
coupling to the walls, try to avoid walls which retain large amounts of thermal energy
(such as marble or steel). Walls containing either cold or warm air currents should also be
avoided whenever possible. Avoid locating the sensor in dead air areas of a room. This
will result in slow response to temperature changes in the space.
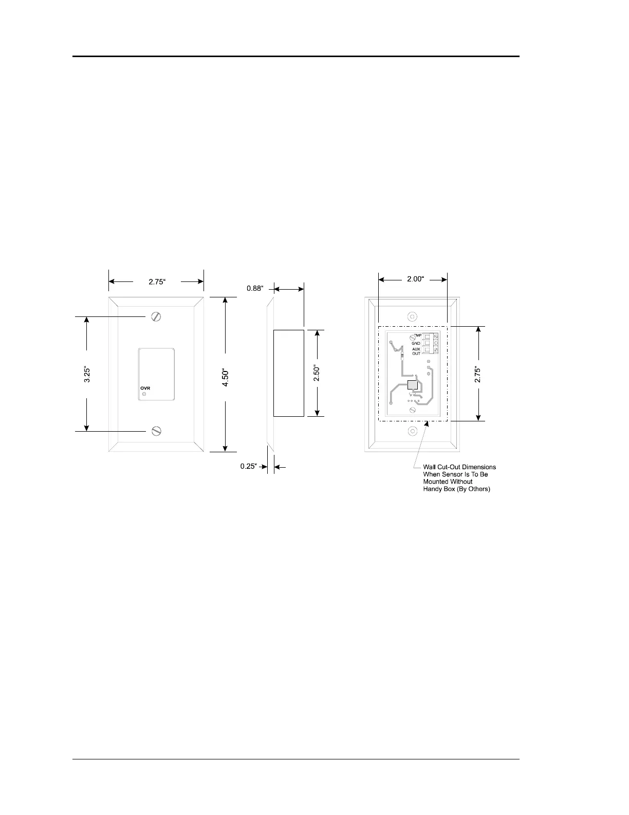
Figure 2-18: Room Sensor Installation
Mount the sensor approximately 50-60 inches from the floor for best results. The Room
Sensor is designed to mount vertically in a standard 2 by 4 inch electrical box. The sensor
may be mounted directly into the drywall where electrical codes do not require low
voltage wiring to be enclosed in conduit. A template is supplied with the sensor to
facilitate cutting a hole of the correct size.
Tip: Be careful when cutting the hole for the sensor or the plastic bezel of the sensor
may not completely cover the opening.
Tip: If sensors must be installed on walls which are solid and cannot be penetrated,
surface mounted boxes and raceway can be purchased from your local electrical
distributor.
firealarmresources.com

Table of Contents

Related product manuals