EasyManua.ls Logo

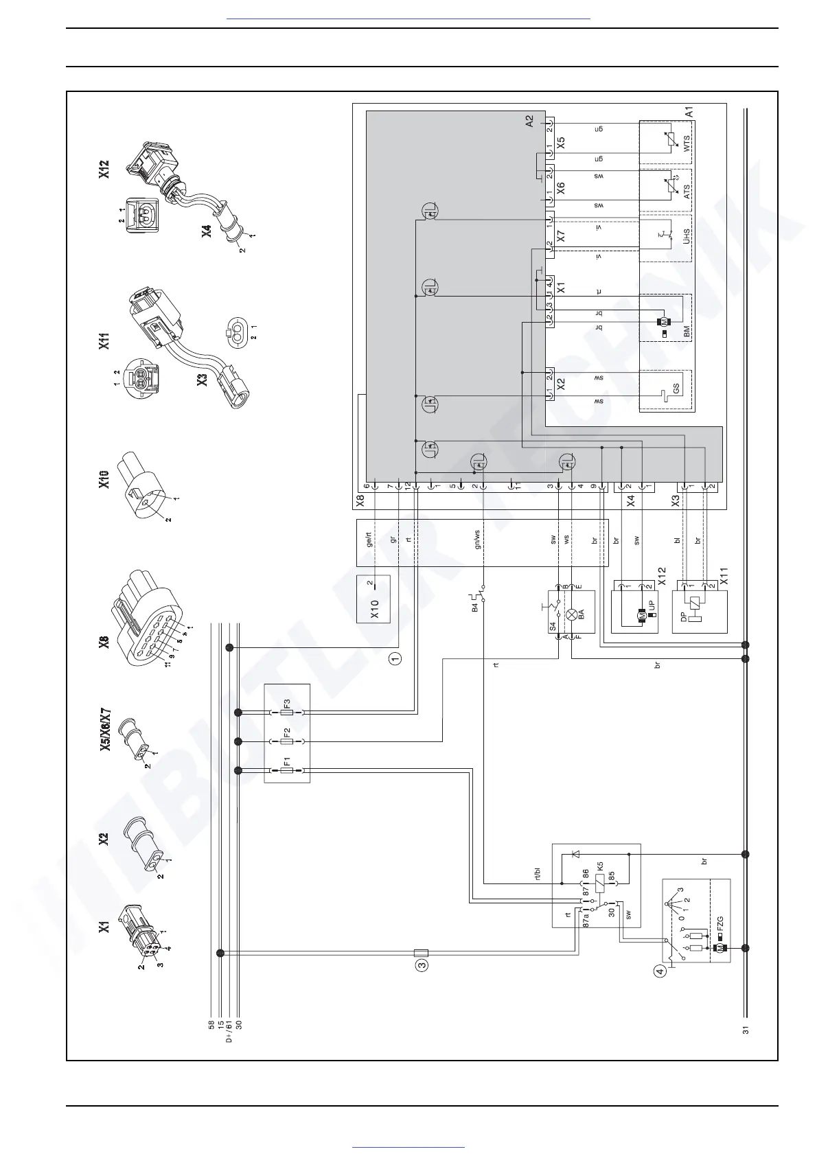
Webasto Thermo Pro 90 - Fig. 704 Circuit Diagram for Thermo Pro 90, Parking Heater with On;Off Switch Without ADR

Webasto Thermo Pro 90
47 pages
Print Icon
To Next Page IconTo Next Page
To Next Page IconTo Next Page
To Previous Page IconTo Previous Page
To Previous Page IconTo Previous Page
Loading...
Thermo Pro 90 7 Circuit diagrams
704
Fig. 704 Circuit diagram for Thermo Pro 90, parking heater with On/Off switch without ADR.
Visit www.butlertechnik.com for more technical information and downloads.
www.butlertechnik.com

Table of Contents

Other manuals for Webasto Thermo Pro 90

Related product manuals