EasyManua.ls Logo

Westerbeke 6.5 MCG - Page 83

Westerbeke 6.5 MCG
90 pages
Print Icon
To Next Page IconTo Next Page
To Next Page IconTo Next Page
To Previous Page IconTo Previous Page
To Previous Page IconTo Previous Page
Loading...
~
CQ
Q):g
Nrco
~
QJ
c
iil
RED-18GA
"'-"'
'"""n
6
0~-
r-=-
0
~kJ
ll\
WHT/BLK/BLU-20GA
1--
LED
OUT
LOW
0 I L
PRESS
Ll
ILl
r
~
_,
LED
OUT
COOLANT
TEMP
m
w
: D
WHT
/BLK/ORG-20JA
a
LEO
OUT
EXH
TEMP
FAIL
Q
I-
kJ
rn
--1
LED
OUT
OVERSPEEO
"0
-<
r
--i=r;--
...
STOP
SWITCH
OUTPUT
>
-<
kJ
I D
WHT
/BLK/GRY
-ZOGA
1-
START
SWITCH
OUTPUT
m
--1
0
LEO
OUT
-
RUN
INDICATOR
>
~
:rl
(J>
0
-~
ID
WHT/BLK/YEL-20GA
ECU,
REM
SWITCH
&
RELAY
COIL
POWER
I-
(/)
Ll;:;'-
_:__
"'
RELAY
LOAD
POWER
SUPPLY
BATTERY
INPUT
0
RUN
RELAY
INPUT
1/
~
..
"'
rn
>
:.
0
-1
0
~
~
rn>
<
~~
-1--,
nrn
~
r-
::r-1
~
0
,
.§.
U)
FIRE
ALARM
"'
~
"'
0
"'
<
~
~
0
-<
0
-
,.
.. ..
"'
"'
"'
>
>
,.
RED/WHT-15GA
\~""
ON]_
BREAKER
115AI
E
:;
"'
"'
0
<0
"'
,.
BLK-18GA
r
I
-:I:z
4=
=3
HOUR
METER
REMOVE
JUMPER
FOR
FIRE
SUPPRESSION
SYSTEM
CONNECTION
-<F
ECij_J/·1
WHT/GRY·/8GA
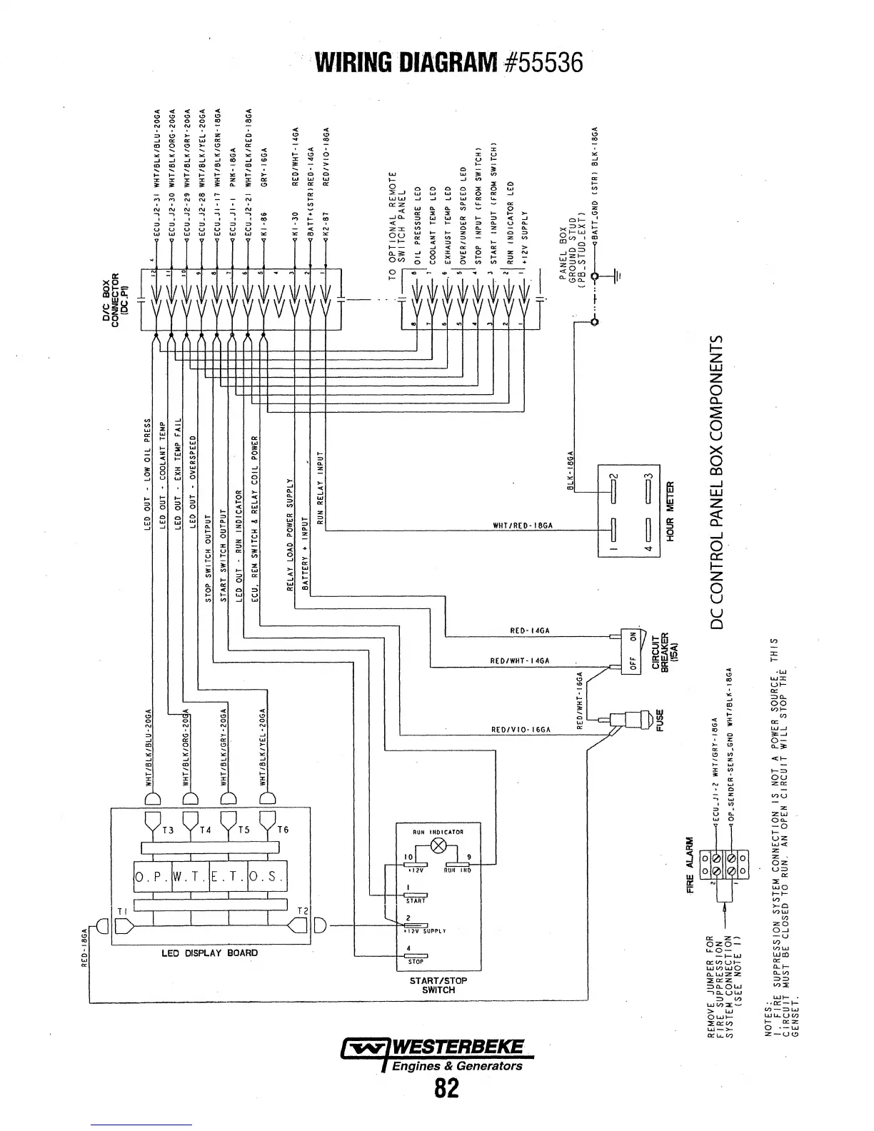
DC
CONTROL
PANEL
BOX
COMPONENTS
CSEE
NOTE
I J
OP.SENDER·SENS.GNO
WHT/8LK·I8GA
0
NOTES:
I.
FIRE
SUPPRESSION
SYSTEM
CONNECTION
IS
NOT
A
POWER
SOURCE.
THIS
CIRCUIT
MUST
BE
CLOSED
TO
RUN.
AN
OPEN
CIRCUIT
WILL
STOP
THE
G£NSET.
0/C
BOX
CONNECTOR
IOC.PU
,----11---
.-
_
_.
r
'
::
:::
II
::::::10
::::_
:::
'
::_:::
8
::::
:::
. 1
:::::
.
::--:-:::
5
-----
<<
.
---
3
-:::--:::
'
:::::
I
~~
I
,----1
TO
OPTI
I~
SWIT
8
~·OIL
PI
7
~
1
COOLAI
~-
6
EXHAU:
5
~'I
OVER/I
4
~
4
STOP
-:::~
3
START
2
-~'!RUN
II
I
~~
+IZV:
~.~-·
PANEL
B
GROUND
:
CPB.STUD
··~--r,
ECU.J2-31
WHTIBLK/8LU-20GA
ECU.JZ-30
WHT/BLK/ORG·20GA
ECU.J2·29
WHT/8LK /GRY·2DGA
ECU.J2-28
WHT/SLK/YEL-20GA
ECU.JI·!T
WHT/BLK/GRN- f8GA
ECU.JI-1
PNK-18GA
ECU.J2·21
WHT/BLK /RE0-18GA
Kl-8&
GRY•ISGA
K
I-
30
REO/WHT
-14GA
8ATTHSTRI
RED·I4GA
K2-8l
REO!VIO·ISGA
ONAL
REMOTE
CH
PANEL
ESSURE
LED
T
TEMP
LEO
T
TEMP
lEO
NDER
SPEED
LEO
NPUT
rFROM
SWITCH
I
INPUT
rFROM
SWITCH!
DICATOR
L£0
UPPL
Y
OX
TUD
EXT
I
ATT.GND
rSTRI
BLK-IBGA
:e
-
:a
-
z
C')
=
-
:.1:>
C')
=
>
s
~
01
(.)1
(.)1
w
0')

Table of Contents

Related product manuals