EasyManua.ls Logo

WITTUR Hydra PLUS - Page 46

WITTUR Hydra PLUS
76 pages
Print Icon
To Next Page IconTo Next Page
To Next Page IconTo Next Page
To Previous Page IconTo Previous Page
To Previous Page IconTo Previous Page
Loading...
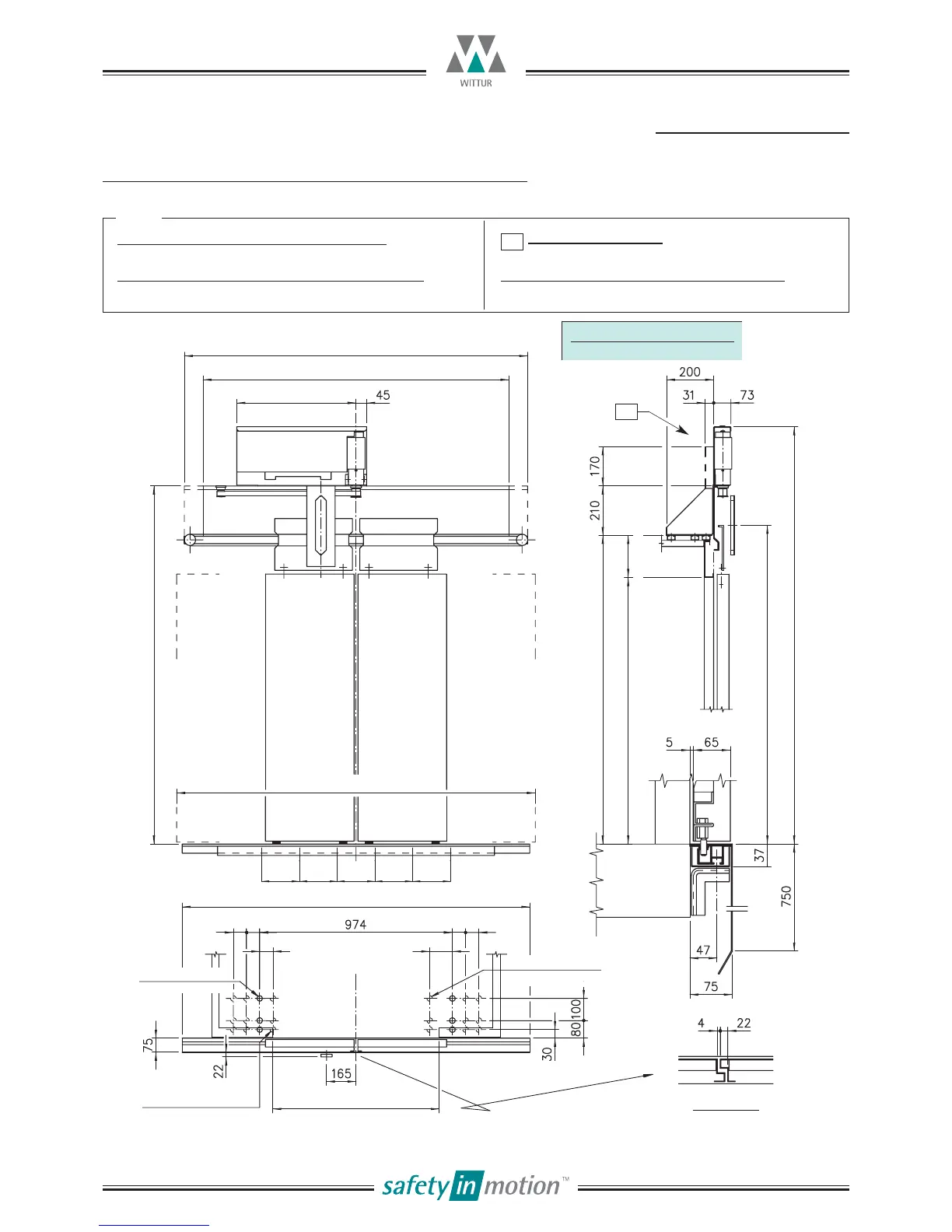
CAR DOOR HYDRA PLUS
PORTE DI CABINA HYDRA PLUS
16.10.2015
Code/Codice
Version/Versione
TC.2.001981.EN
/
Code/Codice
Version/Versione
Date/Data
Page/Pagina
3201.30.0600V01
B
24.11.2010
3.1
Subject to change without notice! Soggetto a modifica senza preavviso!
TWO PANELS CENTRAL OPENING CAR DOOR, TYPE 02/C PL=600÷1800
PORTA DI CABINA 2 ANTE OPPOSTE, TIPO 02/C PL=600÷1800
PL
= CLEAR OPENING
HS = LH+HW=
UNDERSIDE OF MOUNTING
LH =
CLEAR OPENING
HW
ALTERNATIVE FIXINGS
PASSAGGIO LIBERO
LUCE H
APPOGGIO STAFFE
FISSAGGI ALTERNATIVI
OPTIONAL CHANGING
VARIANTE A RICHIESTA
RUNBY
EXTRACORSA
FOR SCHEDULE SEE page 3.1.t
TABELLA VARIABILI A pag. 3.1.t
GM
P
GW
C1
CCCC1
LH+145
WS=2PL
D4D3 D3D4
D2D1
HS+385
(ECO)
HS+465
(MIDI-SUPRA)
FIXING HOLES M10
FORI PER VITI M10
WITH SEMI-AUTOMATIC TYPE SIZES DON’T CHANGEXXXXXXXXXXX
CON IL MODELLO SEMIAUTOMATICO LE MISURE NON CAMBIANO
WITH C.D.L. DIMENSIONS DON’T CHANGE; DETAIL ON PAGE 1.20 AND 1.21I
CON IL B.F.P. LE DIMENSIONI NON CAMBIANO; DETTAGLIO PAG. 1.20 E 1.21
NOTE
FOR APPLICATION OF ECO-MIDI-SUPRA DRIVE SEE PAGE 1.3
APPLICAZIONE MOTORIZZAZIONE ECO-MIDI-SUPRA SECONDO PAGINA 1.3
(min.180)
DETAIL ON PAGE 1.11 AND 1.11.1
DETTAGLIO PAG. 1.11 E 1.11.1
A
395
(ECO)
505
(MIDI-SUPRA
)
A
HS + 210
ALTERNATIVE FIXINGS
FISSAGGI ALTERNATIVI

Related product manuals