EasyManua.ls Logo

WITTUR Hydra PLUS - Three Panels Telescopic Car Door

WITTUR Hydra PLUS
76 pages
Print Icon
To Next Page IconTo Next Page
To Next Page IconTo Next Page
To Previous Page IconTo Previous Page
To Previous Page IconTo Previous Page
Loading...
CAR DOOR HYDRA PLUS
PORTE DI CABINA HYDRA PLUS
16.10.2015
Code/Codice
Version/Versione
TC.2.001981.EN
/
Code/Codice
Version/Versione
Date/Data
Page/Pagina
3201.30.0600V01
C
24.11.2010
4.1
Subject to change without notice! Soggetto a modifica senza preavviso!
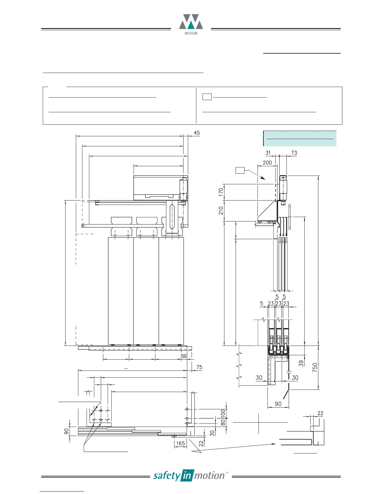
THREE PANELS TELESCOPIC CAR DOOR, TYPE 35/R-L PL=600÷1400
PORTA DI CABINA TELESCOPICA 3 ANTE, TIPO 35/R-L PL=600÷1400
PL
= CLEAR OPENING
PASSAGGIO LIBERO
CCC
WS
~
1.333 PL
GM
P
HS + 385
(ECO)
HS + 465
(MIDI-SUPRA)
LH + 145
HS + 210
HS = LH+HW=
UNDERSIDE OF MOUNTING
APPOGGIO STAFFE
ALTERNATIVE FIXINGS
FISSAGGI ALTERNATIVI
OPTIONAL CHANGING
VARIANTE A RICHIESTA
RUNBY
EXTRACORSA
GW
LH =
CLEAR OPENING
LUCE H
D
D2
D1
HW
(min.180)
FIXING HOLES M10
FORI PER VITI M10
395
(ECO)
505
(MIDI-SUPRA)
FOR SCHEDULE SEE page 4.1.t
TABELLA VARIABILI A pag. 4.1.t
WITH SEMI-AUTOMATIC TYPE SIZES DON’T CHANGEXXXXXXXXXXX
CON IL MODELLO SEMIAUTOMATICO LE MISURE NON CAMBIANO
WITH C.D.L. DIMENSIONS DON’T CHANGE; DETAIL ON PAGE 1.20 AND 1.21I
CON IL B.F.P. LE DIMENSIONI NON CAMBIANO; DETTAGLIO PAG. 1.20 E 1.21
DETAIL ON PAGE 1.11 AND 1.11.1
DETTAGLIO PAG. 1.11 E 1.11.1
NOTE
FOR APPLICATION OF ECO-MIDI-SUPRA DRIVE SEE PAGE 1.4
APPLICAZIONE MOTORIZZAZIONE ECO-MIDI-SUPRA SECONDO PAGINA 1.4
A
A
LEFT HAND
PORTA SX
AS DRAWN
A DISEGNO
RIGHT HAND
PORTA DX
SYMMETRICALLY
OPPOSITE
SIMMETRICA

Related product manuals