EasyManua.ls Logo

WITTUR Hydra PLUS - One Panel Car Door, Type 72;R-L

WITTUR Hydra PLUS
76 pages
Print Icon
To Next Page IconTo Next Page
To Next Page IconTo Next Page
To Previous Page IconTo Previous Page
To Previous Page IconTo Previous Page
Loading...
CAR DOOR HYDRA PLUS
PORTE DI CABINA HYDRA PLUS
16.10.2015
Code/Codice
Version/Versione
TC.2.001981.EN
/
Code/Codice
Version/Versione
Date/Data
Page/Pagina
3201.30.0600V01
C
24.11.2010
7.1
Subject to change without notice! Soggetto a modifica senza preavviso!
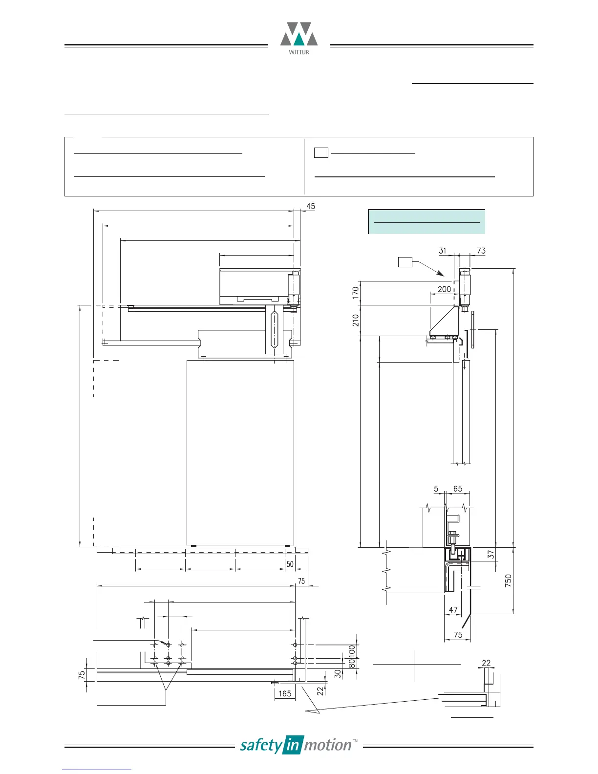
ONE PANEL CAR DOOR, TYPE 72/R-L PL=600÷1400XXI
PORTA DI CABINA 1 ANTA, TIPO 72/R-L PL=600÷1400
GW
PL
= CLEAR OPENING
HS = LH+HW=
UNDERSIDE OF MOUNTING
LH =
CLEAR OPENING
HW
(min.180)
ALTERNATIVE FIXINGS
FIXING HOLES M10
PASSAGGIO LIBERO
LUCE H
APPOGGIO STAFFE
FISSAGGI ALTERNATIVI
FORI PER VITI M10
OPTIONAL CHANGING
VARIANTE A RICHIESTA
RUNBY
EXTRACORSA
FOR SCHEDULE SEE page 7.1.t
TABELLA VARIABILI A pag. 7.1.t
GM
P
HS+385
(ECO)
HS+465
(MIDI-SUPRA)
LH+145
HS+210
CC C
WS=2PL
D
D2
D1
A
395
(ECO)
505
(MIDI-SUPRA)
WITH SEMI-AUTOMATIC TYPE SIZES DON’T CHANGEXXXXXXXXXXX
CON IL MODELLO SEMIAUTOMATICO LE MISURE NON CAMBIANO
WITH C.D.L. DIMENSIONS DON’T CHANGE; DETAIL ON PAGE 1.20 AND 1.21I
CON IL B.F.P. LE DIMENSIONI NON CAMBIANO; DETTAGLIO PAG. 1.20 E 1.21
DETAIL ON PAGE 1.11 AND 1.11.1
DETTAGLIO PAG. 1.11 E 1.11.1
LEFT HAND
PORTA SX
AS DRAWN
A DISEGNO
RIGHT HAND
PORTA DX
SYMMETRICALLY
OPPOSITE
SIMMETRICA
NOTE
FOR APPLICATION OF ECO-MIDI-SUPRA DRIVE SEE PAGE 1.10
APPLICAZIONE MOTORIZZAZIONE ECO-MIDI-SUPRA SECONDO PAGINA 1.10
A

Related product manuals