EasyManua.ls Logo

WITTUR Hydra PLUS - Mechanical Release Assembly Type 1202 for Car

WITTUR Hydra PLUS
76 pages
Print Icon
To Next Page IconTo Next Page
To Next Page IconTo Next Page
To Previous Page IconTo Previous Page
To Previous Page IconTo Previous Page
Loading...
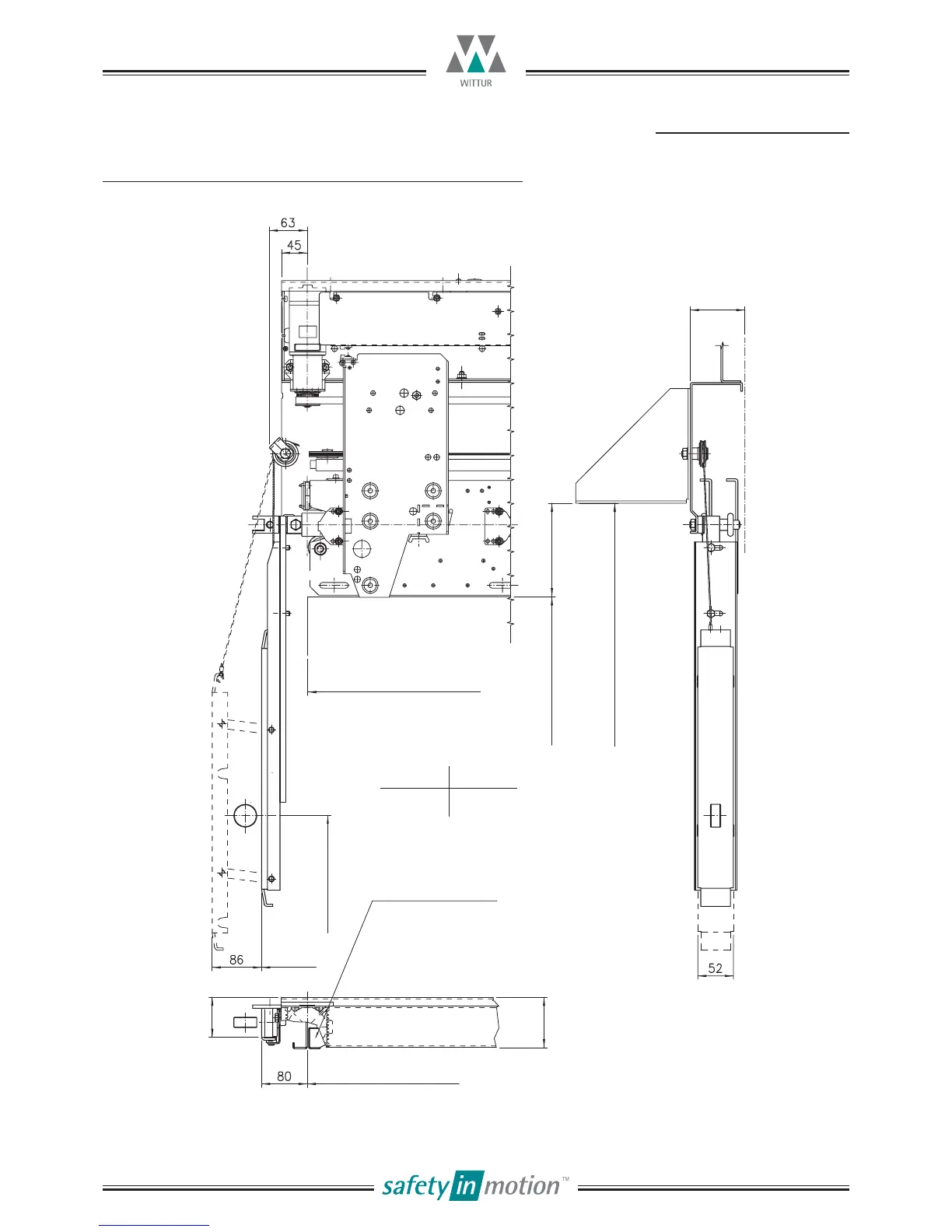
MECHANICAL RELEASE ASSEMBLY TYPE 1202 FOR CAR DOORSXXXXXI
MONTAGGIO SBLOCCO MECCANICO TIPO 1202 PER PORTE DI CABINA
CAR DOOR HYDRA PLUS
PORTE DI CABINA HYDRA PLUS
16.10.2015
Code/Codice
Version/Versione
TC.2.001981.EN
/
Code/Codice
Version/Versione
Date/Data
Page/Pagina
3201.30.0600V01
A
24.11.2010
8.2.2
Subject to change without notice! Soggetto a modifica senza preavviso!
min.HS-752
max.HS-329
PL =
CLEAR OPENING
PASSAGGIO LIBERO
HS = LH+HW=
UNDERSIDE OF MOUNTING
LH =
CLEAR OPENING
HW
(min.180)
LUCE H
APPOGGIO STAFFE
PL =
CLEAR OPENING
PASSAGGIO LIBERO
RECOMMENDATION:
DOUBLE SKIN PANEL OR WITH
PROTECTION SHEET
ATTENZIONE: SI CONSIGLIA
L’IMPIEGO DI ANTINA TAMBURATA
O CON LAMIERA DI PROTEZIONE
SILL
SOGLIA
TRAVERSE
CORSA
SILL
SOGLIA
max.68
min. 52
RIGHT OPERATOR
OPERATORE DX
AS DRAWN
A DISEGNO
LEFT OPERATOR
OPERATORE SX
SYMMETRICALLY
OPPOSITE
SIMMETRICO

Related product manuals