EasyManua.ls Logo

Wolf Ranges - Page 84

Wolf Ranges
88 pages
Print Icon
To Next Page IconTo Next Page
To Next Page IconTo Next Page
To Previous Page IconTo Previous Page
To Previous Page IconTo Previous Page
Loading...
RRAANNGGEESS && RRAANNGGEETTOOPPSS
7-28
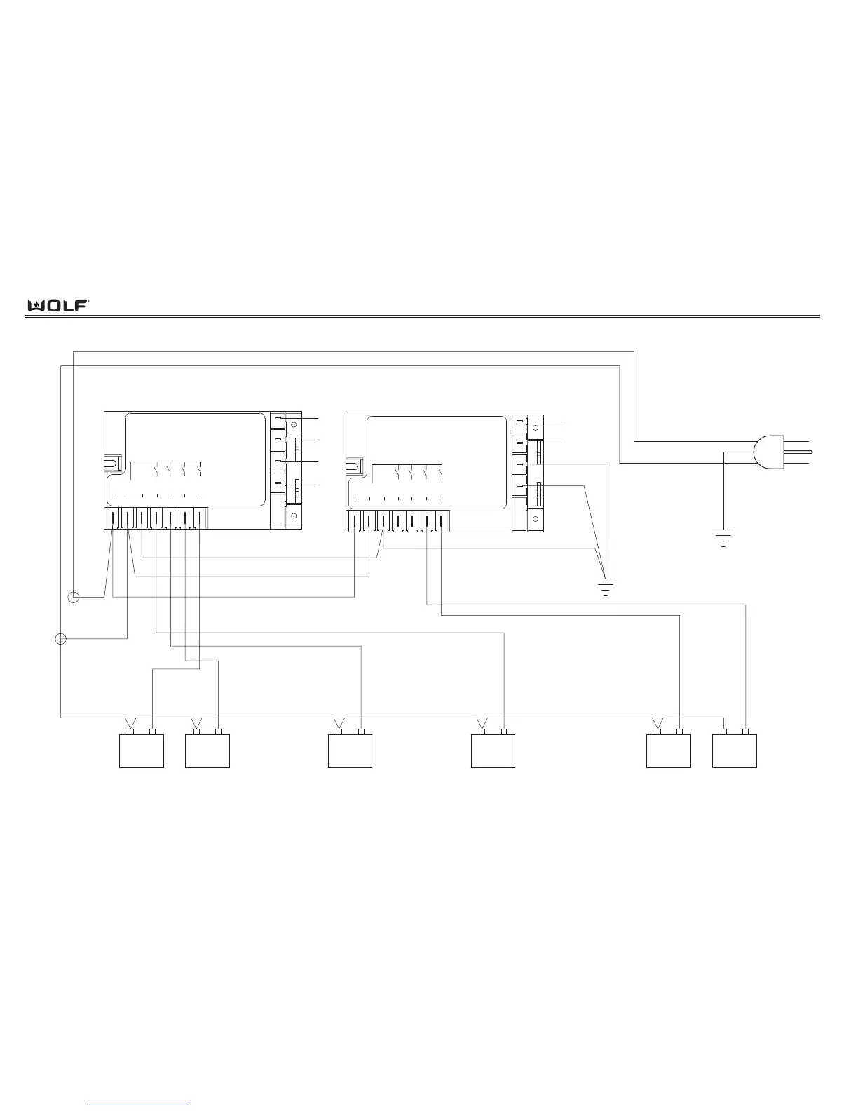
Wiring Diagrams
FRONTREARREAR FRONT
BLK (2)
BRN (9)
BLU (10)
BLK (1)
BLK (6)BLK (3) BLK (4)
YEL (12)
ORN (20)
STRIPES (30)
BLU W/WHT STRIPES (32)
LEFT CHARBROILER
BLK (5)
BURNER
BURNER
BURNER BURNER
SWITCH
SWITCH
SWITCH SWITCH
LEFT
LEFT
RIGHT RIGHT
BURNER
SWITCH
BURNER
SWTICH
WHT
BLK
GRN
PLUG
GROUND
MODULE
RR
RF
MODULE
LR
C/BR
C/BL
LF
GRN (42)
WHT (39)
WHT
(38)
BLK (33)
GRN (41)
BLK (34)
BRN W/WHT
REIG1
REIG2
REIG3
REIG4
6
NEUT.
78
LINE
GND
REIG 1
12
REIG 2
REIG 3
REIG 4
109 11
REIG1
REIG2
REIG3
REIG4
6
NEUT.
78
LINE
GND
REIG 1
12
REIG 2
REIG 3
REIG 4
109 11
RIGHT CHARBROILER
RT484DCRT484DC-LP

Table of Contents

Related product manuals