EasyManua.ls Logo

Wolf Ranges - Page 86

Wolf Ranges
88 pages
Print Icon
To Next Page IconTo Next Page
To Next Page IconTo Next Page
To Previous Page IconTo Previous Page
To Previous Page IconTo Previous Page
Loading...
RRAANNGGEESS && RRAANNGGEETTOOPPSS
7-30
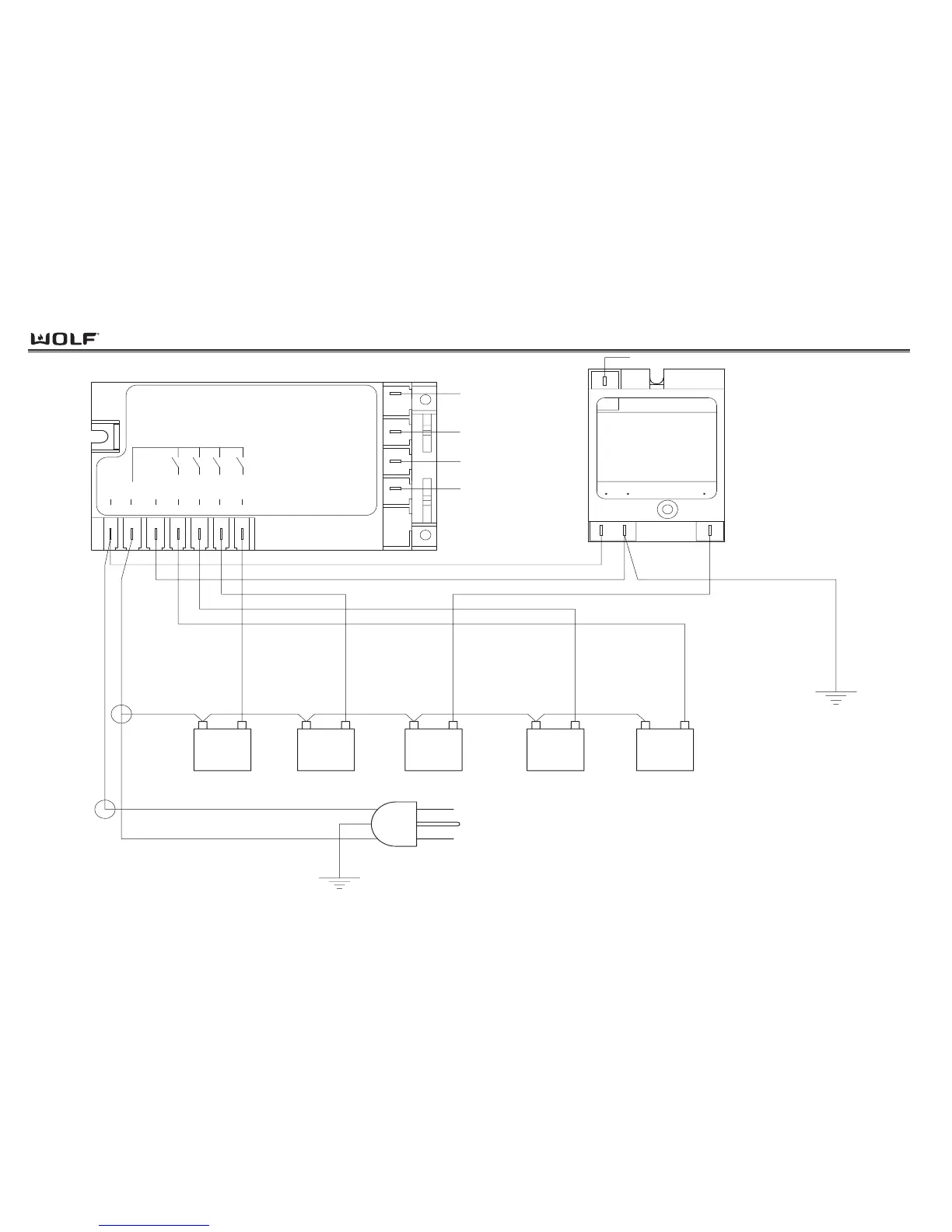
Wiring Diagrams
9
REIG 4
NEUT.
6
LINE
7
GND
811
REIG 2
10
REIG 3
LF
RR
RF
LR
REIG1
REIG2
REIG3
REIG4
REIG 1
12
GREEN (41)
WHITE (39)
BLACK (2)
BURNER
SWITCH
LEFT
SWITCH
LEFT
BURNER
FRONTREAR
SWITCH
FRENCH TOP
MIDDLE
BURNER
SWITCH
RIGHT
REAR
BURNER
SWITCH
RIGHT
FRONT
BURNER
BROWN (9)
BLUE (10)
YELLOW (12)
ORANGE (17)
VIOLET (28)
BLACK (3) BLACK (4)
GREEN (42)
GREEN
PLUG
BLACK (1)
BLACK (35)
BLACK
WHITE (38)
WHITE
LEFT SPARK MODULE
NGL
BLACK (5)
CB
GROUND
H
RT484F/RT484F-LP

Table of Contents

Related product manuals