EasyManua.ls Logo

Wood-mizer MP200 E6S - Technical Specifications

Wood-mizer MP200 E6S
54 pages
Print Icon
To Next Page IconTo Next Page
To Next Page IconTo Next Page
To Previous Page IconTo Previous Page
To Previous Page IconTo Previous Page
Loading...
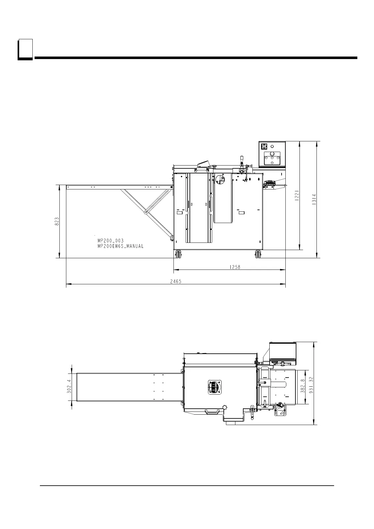
PLANER/MOULDER SPECIFICATIONS
Overall dimensions
5
5-1 EGdoc021023 Specyfikacje
SECTION 5 PLANER/MOULDER SPECIFICATIONS
5.1 Overall dimensions
See figure 5-1. The overall dimensions of the MP200 Planer/moulder are shown below (all dimensions
in millimeters).
FIG. 5-1 MP200

Related product manuals