EasyManua.ls Logo

Worcester GB162-50

Worcester GB162-50
72 pages
To Next Page IconTo Next Page
To Next Page IconTo Next Page
To Previous Page IconTo Previous Page
To Previous Page IconTo Previous Page
Loading...
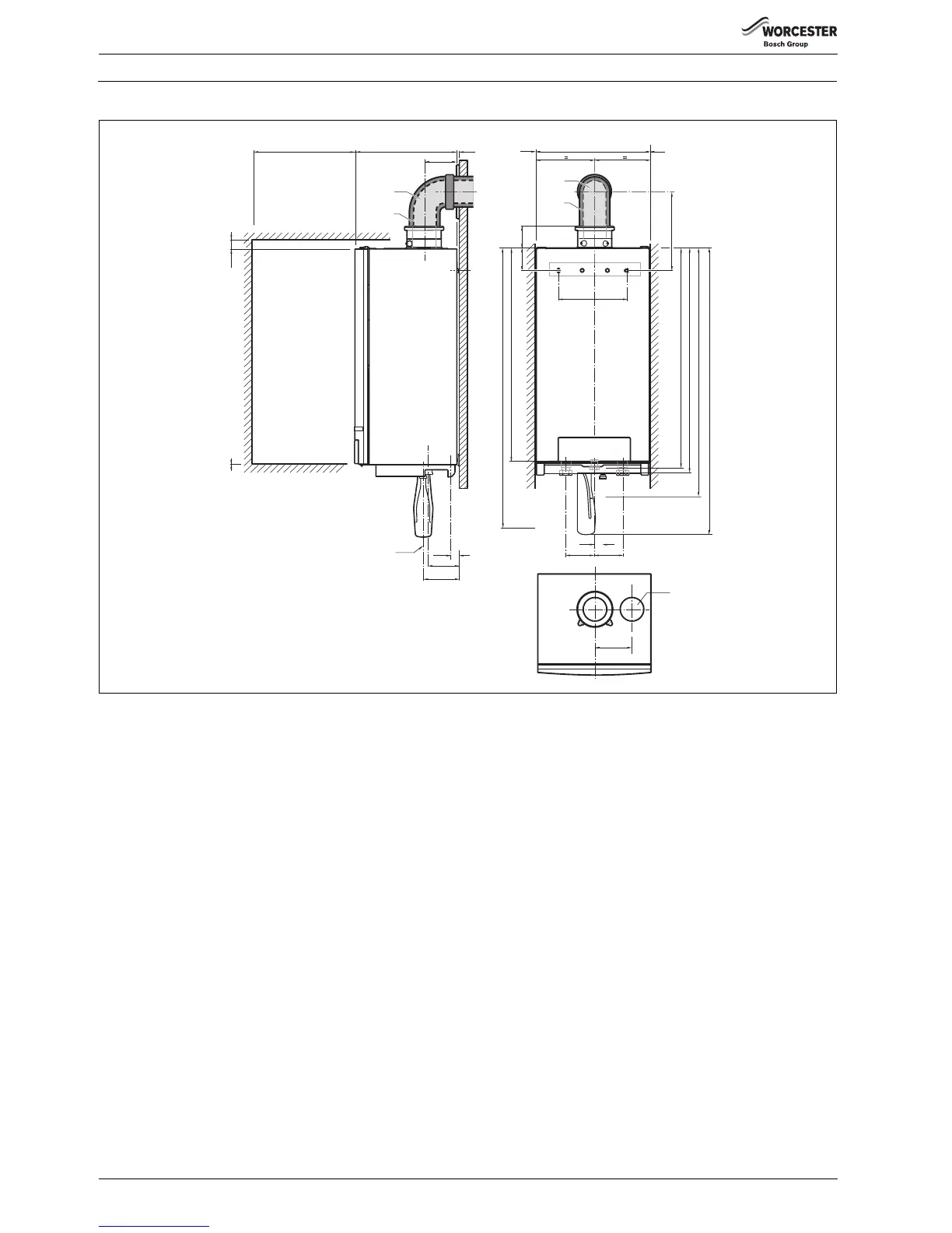
Dimensions of boiler
6720813171 (2015/04)12
7 Dimensions of boiler
Fig. 6 Dimensions and connections WITHOUT pump group (dimensions in mm)
[CDO] Condensate drain outlet; Ø 24 mm O/D
[CFO] Distance from wall bracket to centre of horizontal flue elbow; 337.5 mm for Ø 80/125 flue and 339.5 mm for Ø 100/150 flue
[CHF] CH (boiler) flow; G1½" union nut with female thread
[CHR] CH (boiler) return; G1½" union nut with female thread
[CS] Cap (DO NOT remove)
[FGC/AIC] Flue gas/air intake connection: Ø 80/125 for GB162-50/65 and Ø 100/150 for GB162-80/100
[GAS] Gas connection to boiler; G1" female thread
The servicing clearances required are:
•in front: 50mm
below: 0 mm (250 mm with pump group)
•right side: 0mm
•left side: 0mm
•above: 30mm.
The position selected for installation must allow adequate space for servicing in front of the boiler:
in front: 550 mm
below: 350 mm
•right side: 0mm
•left side: 0mm
•above: 40mm.
CDO
1280
980
1003
1030
1186
1310
135
103.5
520
300
140
130 130
39
35
138
162
465
6
152
CHF CHRGAS
CDO
CS
CHF/CHR
GAS
550
40
0
0 0
CFO
FGC
AIC
FGC
AIC
6 720 648 726-006.1TD

Table of Contents

Other manuals for Worcester GB162-50

Related product manuals