EasyManua.ls Logo

Worcester GREENSTAR 30CDi - Position of Wired Components

Worcester GREENSTAR 30CDi
48 pages
Print Icon
To Next Page IconTo Next Page
To Next Page IconTo Next Page
To Previous Page IconTo Previous Page
To Previous Page IconTo Previous Page
Loading...
INSTALLATION
6 720 806 548 (2013/02)26
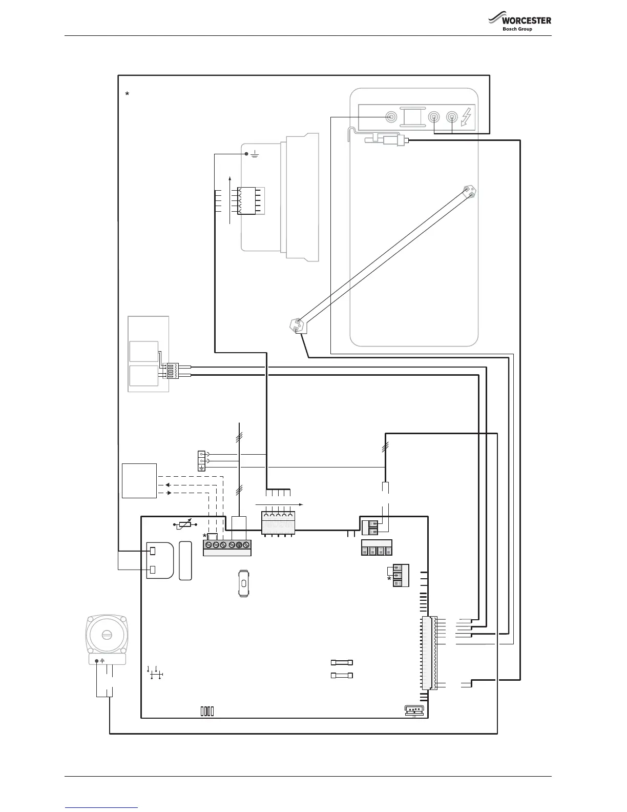
4.8 POSITION OF WIRED COMPONENTS
Fig. 39 Wired components
EXTERNAL
PUMP
FSFR NP LP
NZ
LZ
L
N
S
N
L
SLR
ST8
ST2
ST9
ST18
ST5 ST4
ST10
Earth
MAINS
SUPPLY
PUMP SUPPLY
SPARK
TRANSFORMER
FLAME SENSE
ELECTRODE
SPARK
ELECTRODES
FLOW NTC
OVERHEAT
STAT
FLUE
OVERHEAT
STAT
ST1
DIAGNOSTIC
INTERFACE
CODE PLUG
Fuse F1, slow
2.5 A, AC 230 V
ST6
CH TEMPERATURE
CONTROL
Neutral Supply
230V
EXTERNAL
CONTROLS
WIRING
CENTRE
Live Supply
Live Return
Neutral
Live
Live
Colour sequence
Orange
Orange
Red
Red
7
8
9
Blue
FAN
Colour sequence
Neutral
PRE WIRED LINK
GAS
VALVE
SAFETY
SOLENOID
SAFETY
SOLENOID
Blue
Black
Yellow
Grey
6720648547-17.4Wo
230V~
20
1
Fuse F3 T 0.5A 250V
Fuse F2 T 1.6A 250V

Table of Contents

Related product manuals