EasyManua.ls Logo

Xantrex Freedom XC PRO Series

Xantrex Freedom XC PRO Series
114 pages
To Next Page IconTo Next Page
To Next Page IconTo Next Page
To Previous Page IconTo Previous Page
To Previous Page IconTo Previous Page
Loading...
Basic Installation Procedures
30 Freedom XC PRO Owner's Guide
Do not connect the Freedom XC PRO to an AC branch circuit that
has high-power consumption loads.
The Freedom XC PRO will not operate electric heaters, air
conditioners, stoves, and other electrical appliances that
consume more than its rated watts.
A manufacturer-tested and approved GFCI must be connected to
the Freedom XC PRO AC output, and GFCI protection must be
provided on every receptacle connected to the AC hard wired
installation. Other types may fail to operate properly when
connected to the Freedom XC PRO. See Ground Fault Circuit
Interrupters (GFCIs) on page 21.
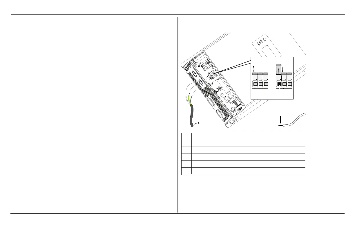
AC Output Connections
Figure 10 Routing the wires
N
L
G
N LG N LG
2
1
3
4
5
1 step 7a
2 step 7b
3 step 7c
4 10mm
5 to circuit breaker
NOTE: AC output hole - install a strain relief clamp (not shown).
To make a permanent connection to existing AC wiring:
1. Ensure AC and DC power sources are turned off, if not
already done from AC Output Connections on page 30.

Table of Contents

Related product manuals