EasyManua.ls Logo

Xtreme Power Conversion P91 - 3 Functional Block

Xtreme Power Conversion P91
34 pages
Print Icon
To Next Page IconTo Next Page
To Next Page IconTo Next Page
To Previous Page IconTo Previous Page
To Previous Page IconTo Previous Page
Loading...
Xtreme Power Conversion Corporaon
P91, TX91, TX91L, TXVR Service Manual
Page 7
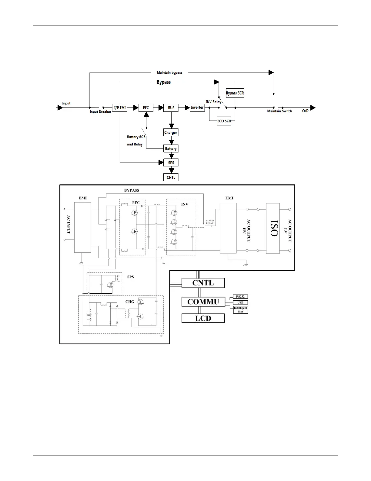
Uninterrupble Power Supply
3. Funconal Block
As a true online UPS, the product applies a double conversion topology, comprising funconal blocks as shown in
Figure 3.1
Figure 3.1 Funcon block Diagram
The CNTL block controls the acon of the UPS system. It also provides the communicaon interface for receiving
and execung command from users via the panel or other communicaon protocol. When the UPS becomes
abnormal, in most case, the CNTL can provide basic informaon indicang the status of the UPS.

Related product manuals