EasyManua.ls Logo

Yamaha EF5500EFW - Schéma de Câblage; Ef5500 Efw

Yamaha EF5500EFW
468 pages
Print Icon
To Next Page IconTo Next Page
To Next Page IconTo Next Page
To Previous Page IconTo Previous Page
To Previous Page IconTo Previous Page
Loading...
– 50 –
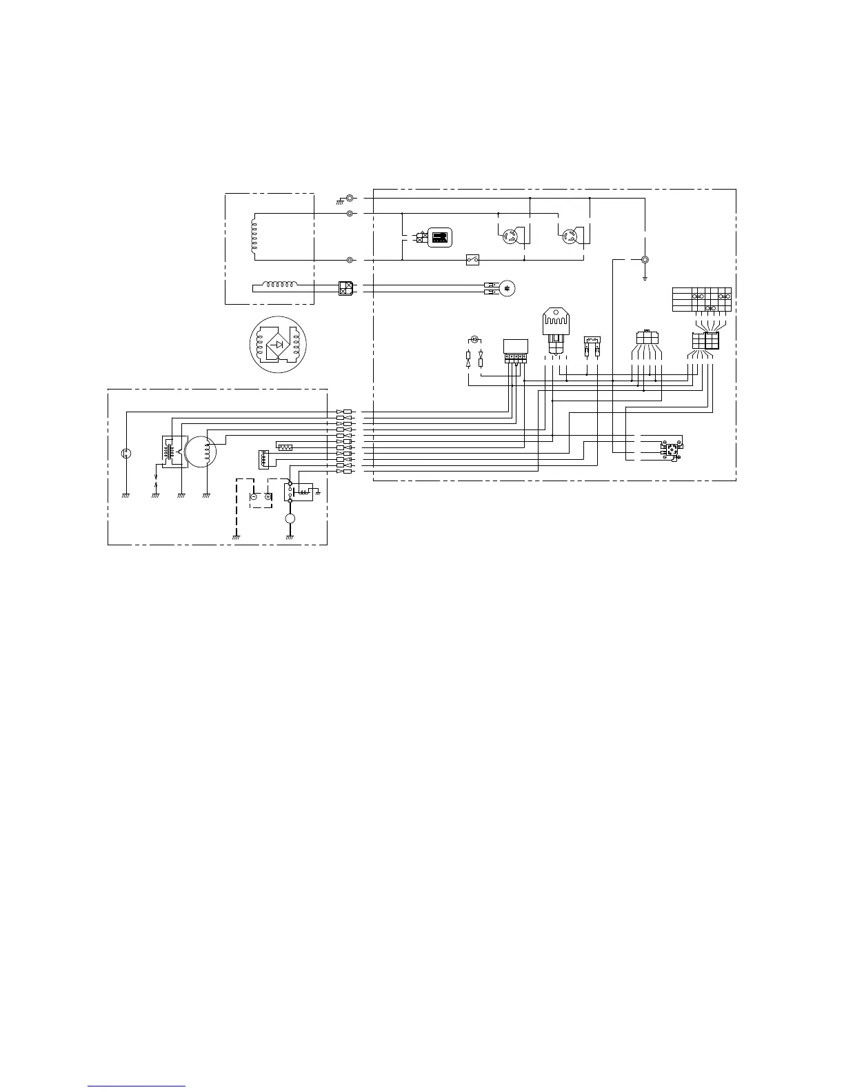
SCHÉMA DE CÂBLAGE
EF5500EFW
1 Ensemble rotor
2 Sous-bobine
3 Bobine principale
4 Ensemble stator
5 Compteur de tension/heure
6 Contacteur CA (sans fusible)
7 Prise CA
8 Contacteur du moteur
9 Redresseur
0 Borne de commande à dis-
tance
q Fusible
w Redresseur/Régulateur
e Condensateur
r Unité d’avertissement de
niveau d’huile
t Témoin d’avertissement
d’huile
Code couleur
B Noir
Br Brun
G Vert
L Bleu
O Orange
R Rouge
W Blanc
Y Jaune
B/W Noir/Blanc
G/R Vert/Rouge
G/Y Vert/Jaune
L/R Bleu/Rouge
L/W Bleu/Blanc
R/B Rouge/Noir
R/W Rouge/Blanc
y Relais de démarreur
u Moteur du démarreur
i Réchauffeur du carburateur
o Électrovanne du carburateur
p Batterie
a Bobine de charge
s Unité TCI
d Bougie
f Interrupteur de niveau d’huile
B
M
L
L/R
L/W
B
Y
L/R
Y
L/R
Y
L/R
Y
G/Y
Br
R
G/Y
Br
R
R/B
B
L/R
R/B
O
B
G/R
B
R/W
G
B/W
G/R R
WB
B/W
B
R/W
G/Y
RR
R
G/R
G/R
B/W
W
B
L
R/W
YB/W
YB/W
R/W
B/W
G/R
R/W
B/W
R/W
B/W
B/W
L/R
R/W
B
R/W
B/W
G
RW
G/Y
RB
RB
B
G/R
R
B
R
Y
RB
ON
OFF
START
B
G
G
Br
R
O
Y
B/W
Br
R
Br
R
L/W
B
Y
G/R
1
2
4
5
6
7 7
8
0
q
w
r
e
t
u
i
p
a
s
d
f
o
y
3
9
7P5-F8199-U0-F0.indd 50 2014/05/21 9:16:03

Table of Contents

Related product manuals