EasyManua.ls Logo

Yamaha EF5500EFW - Bedradingsschema

Yamaha EF5500EFW
468 pages
Print Icon
To Next Page IconTo Next Page
To Next Page IconTo Next Page
To Previous Page IconTo Previous Page
To Previous Page IconTo Previous Page
Loading...
– 50 –
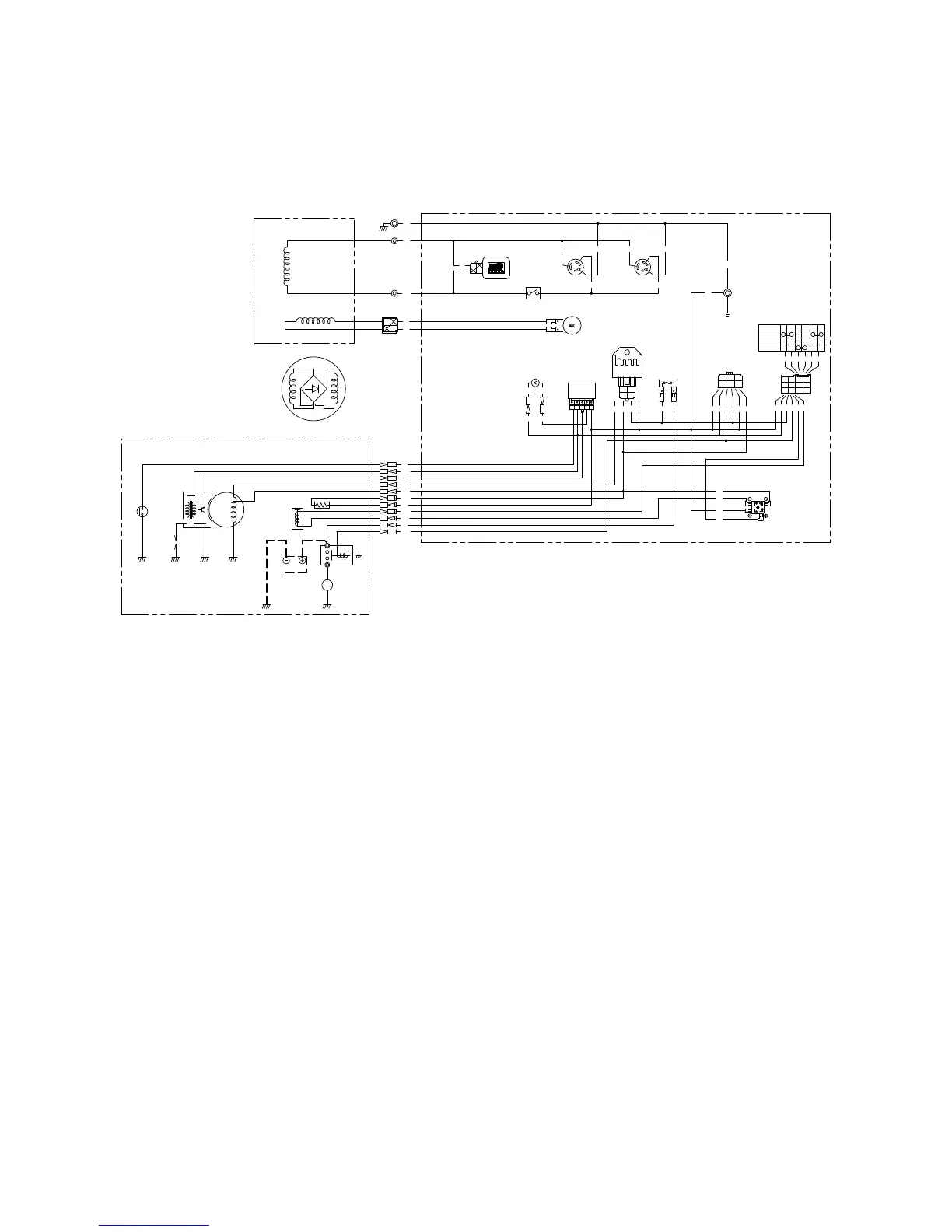
BEDRADINGSSCHEMA
EF5500EFW
1 Rotoreenheid
2 Subspoel
3 Hoofdspoel
4 Statoreenheid
5 Voltage/uur-meter
6 Wisselstroomschakelaar
(N.F.B.)
7 Wisselstroomstopcontact
8 Motorschakelaar
9 Gelijkrichter
0
Afstandsbedieningsaansluiting
q Zekering
w Gelijkrichter/regulator
e Condensator
r Olieverklikkereenheid
t Olieverklikkerlampje
y Startrelais
u Startmotor
Kleurcode
B Zwart
Br Bruin
G Groen
L Blauw
O Oranje
R Rood
W Wit
Y Geel
B/W Zwart/Wit
G/R Groen/Rood
G/Y Groen/Geel
L/R Blauw/Rood
L/W Blauw/Wit
R/B Rood/Zwart
R/W Rood/Wit
i Carburateurverwarming
o Magneetklep carburateur
p Accu
a Laadspoel
s TCI-eenheid
d Bougie
f Olieniveauschakelaar
B
M
L
L/R
L/W
B
Y
L/R
Y
L/R
Y
L/R
Y
G/Y
Br
R
G/Y
Br
R
R/B
B
L/R
R/B
O
B
G/R
B
R/W
G
B/W
G/R R
WB
B/W
B
R/W
G/Y
RR
R
G/R
G/R
B/W
W
B
L
R/W
YB/W
YB/W
R/W
B/W
G/R
R/W
B/W
R/W
B/W
B/W
L/R
R/W
B
R/W
B/W
G
RW
G/Y
RB
RB
B
G/R
R
B
R
Y
RB
ON
OFF
START
B
G
G
Br
R
O
Y
B/W
Br
R
Br
R
L/W
B
Y
G/R
1
2
4
5
6
7 7
8
0
q
w
r
e
t
u
i
p
a
s
d
f
o
y
3
9
7P5-F8199-U0-D0.indd 50 2014/05/21 9:13:54

Table of Contents

Related product manuals