EasyManua.ls Logo

Yamaha EF5500EFW - Diagramma DI Cablaggio; Ef5500 Efw

Yamaha EF5500EFW
468 pages
Print Icon
To Next Page IconTo Next Page
To Next Page IconTo Next Page
To Previous Page IconTo Previous Page
To Previous Page IconTo Previous Page
Loading...
– 50 –
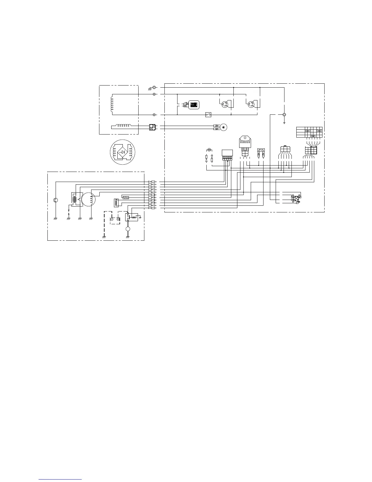
DIAGRAMMA DI CABLAGGIO
EF5500EFW
Codice colore
B Nero
Br Marrone
G Verde
L Blu
O Arancione
R Rosso
W Bianco
Y Giallo
B/W Nero/Bianco
G/R Verde/Rosso
G/Y Verde/Giallo
L/R Blu/Rosso
L/W Blu/Bianco
R/B Rosso/Nero
R/W Rosso/Bianco
1 Gruppo rotore
2 Bobina secondaria
3 Bobina principale
4 Gruppo statore
5 Voltmetro/contaore
6 Interruttore CA (senza fusi-
bile)
7 Presa CA
8 Interruttore del motore
9 Rettificatore
0 Terminale telecomando
q Fusibile
w Rettificatore/regolatore
e Condensatore
r Unità avvertenza olio
t Spia dell’olio
y Relè dispositivo di avvia-
mento
u Motorino di avviamento
i Dispositivo di riscaldamento
del carburatore
o Valvola solenoide carburatore
p Batteria
a Bobina di carica
s Unità TCI
d Candela
f Interruttore livello olio
B
M
L
L/R
L/W
B
Y
L/R
Y
L/R
Y
L/R
Y
G/Y
Br
R
G/Y
Br
R
R/B
B
L/R
R/B
O
B
G/R
B
R/W
G
B/W
G/R R
WB
B/W
B
R/W
G/Y
RR
R
G/R
G/R
B/W
W
B
L
R/W
YB/W
YB/W
R/W
B/W
G/R
R/W
B/W
R/W
B/W
B/W
L/R
R/W
B
R/W
B/W
G
RW
G/Y
RB
RB
B
G/R
R
B
R
Y
RB
ON
OFF
START
B
G
G
Br
R
O
Y
B/W
Br
R
Br
R
L/W
B
Y
G/R
1
2
4
5
6
7 7
8
0
q
w
r
e
t
u
i
p
a
s
d
f
o
y
3
9
7P5-F8199-U0-H0.indd 50 2014/05/21 9:33:21

Table of Contents

Related product manuals