EasyManua.ls Logo

YASKAWA SGMGH - Page 126

YASKAWA SGMGH
615 pages
To Next Page IconTo Next Page
To Next Page IconTo Next Page
To Previous Page IconTo Previous Page
To Previous Page IconTo Previous Page
Loading...
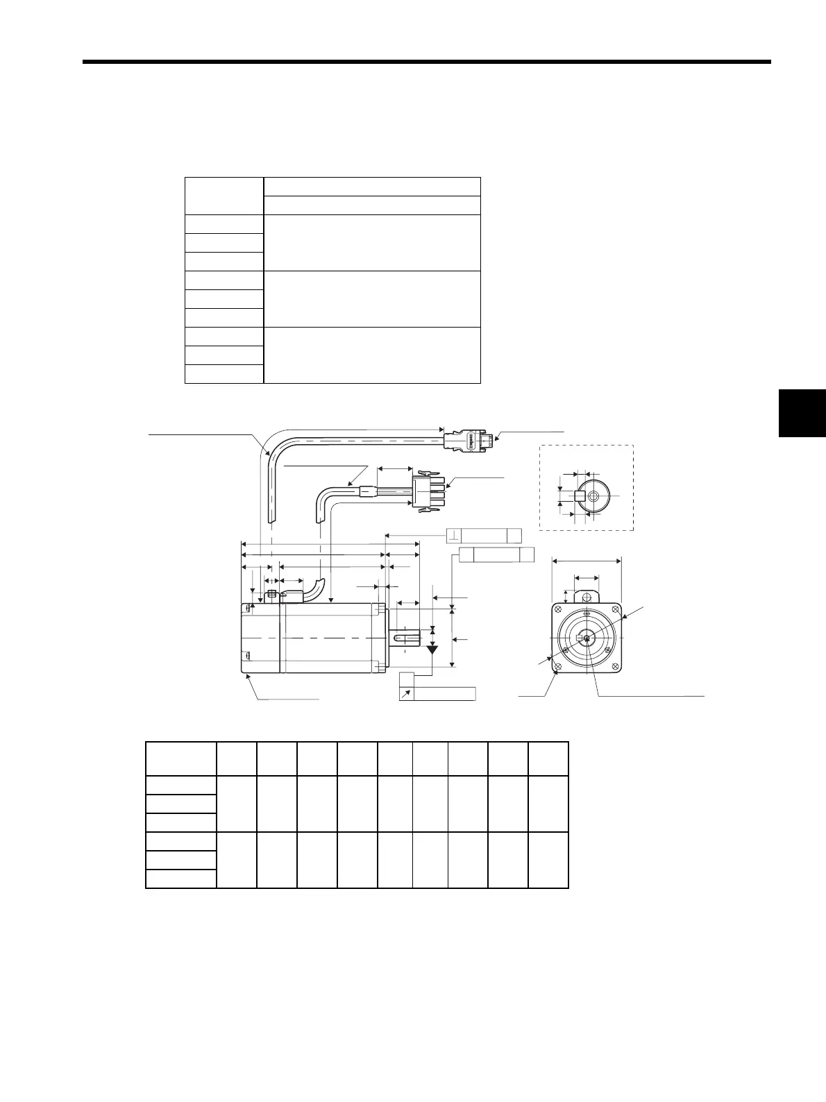
3.12 Dimensional Drawings of SGMAH Servomotors (3000 min
-1
)
3-55
3
• Dimensional Tolerances
(2) 200 W, 400 W
Units: mm (in)
Model
SGMAH-
Shaft-end Dimensions
S
A3A21
A3A41
A3A61
A5A21
A5A41
A5A61
01A21
01A41
01A61
6
0
0.008
0.236
0
0.0003


6
0
0.008
0.236
0
0.0003


8
0
0.009
0.315
0
0.0004


φLA
Tap × Depth
(See the following
table.)
4-φLZ
21.5 (0.85)
T
U
W
Serial encoder
L
LM
LL
LR
LE
LG
QK
9.5
(0.37)
20 (0.79)
φ50h7
φ14h6
φ50
0
-0.025
φ14
φ0.5512
(
)
0
-0.011
0
-0.00043
φ1.9685
( )
0
-0.00098
300 (11.81) ±30 (±1.18)
300 (11.81)
±30 (±21.18)
35(1.38)
Motor cable φ7 (φ0.28)
Encoder cable φ6 (φ0.24)
UL20276
Motor plug
Encoder plug
11
A
(0.0016)
0.04
A
φ0.04
(φ0.001
6)
A
0.02 (0.0008)
٧
Shaft End
Y
Y
26.5 (1.04)
13
(0.51)
LC
Units: mm (in)
Model
SGMAH-
LLLLMLRLELGLALCLZ
02A21
126.5
(4.98)
96.5
(3.80)
63
(2.48)
30
(1.18)
3
(0.12)
6
(0.24)
70
(2.76)
60
(2.36)
5.5
(0.22)
02A41
02A61
04AA21
154.5
(6.08)
124.5
(4.90)
91
(3.58)
30
(1.18)
3
(0.12)
6
(0.24)
70
(2.76)
60
(2.36)
5.5
(0.22)
04AA41
04AA61
Artisan Technology Group - Quality Instrumentation ... Guaranteed | (888) 88-SOURCE | www.artisantg.com

Table of Contents

Related product manuals