EasyManua.ls Logo

YASKAWA SGMGH

YASKAWA SGMGH
615 pages
To Next Page IconTo Next Page
To Next Page IconTo Next Page
To Previous Page IconTo Previous Page
To Previous Page IconTo Previous Page
Loading...
12 Appendix
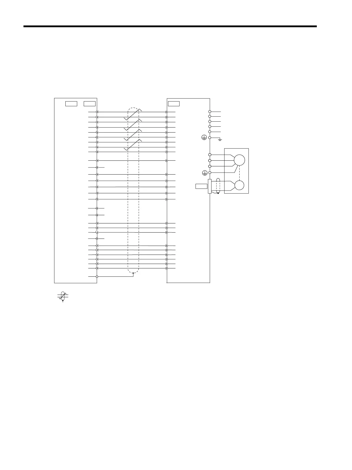
12.2.1 Example of Connection to MP920 4-axes Analog Module SVA-01
12-14
12.2 Connection to Host Controller
12.2.1 Example of Connection to MP920 4-axes Analog Module SVA-01
* represents twisted-pair wires.
CN1 CN1CN4
SGDM SERVOPACK
MP920 Series SVA-01
manufactured by
Yaskawa
3
4
5
16
7
6
13
12
30
34
29
11
19
14
1
20
28
32
FG
21
22
18
35
10
17
31
2
23
24
20
6
43
42
41
47
4
27
32
30
10
29
31
5
2
33
34
35
36
19
44
21
22
40
NREF
SG
PA
PAL
PB
PBL
PC
PCL
SG
+24V OUT
SVON
ALMRST
PCON
OTR
OTF
DOSEN
0V
SEN
SG
0V
0V
SVALM
0V
SVRDY
BRK
BAT
0BAT
V-REF
SG
SG
PAO
/PAO
PBO
/PBO
PCO
/PCO
+24V-IN
/S-ON
/ALM-RST
/P-CON
N-OT
P-OT
SEN
SG
/S-RDY+
ALM+
ALM-
/S-RDY+
/TGON+
BAT(+)
BAT(-)
to
CN2
L1C
L3
L2
L1
L2C
W
V
A(1)
B
(2)
C
(3)
D
(4)
U
Servomotor
M
Control power supply
Main circuit power supply
PG
Artisan Technology Group - Quality Instrumentation ... Guaranteed | (888) 88-SOURCE | www.artisantg.com

Table of Contents

Related product manuals