EasyManua.ls Logo

YASKAWA SGMGH

YASKAWA SGMGH
615 pages
To Next Page IconTo Next Page
To Next Page IconTo Next Page
To Previous Page IconTo Previous Page
To Previous Page IconTo Previous Page
Loading...
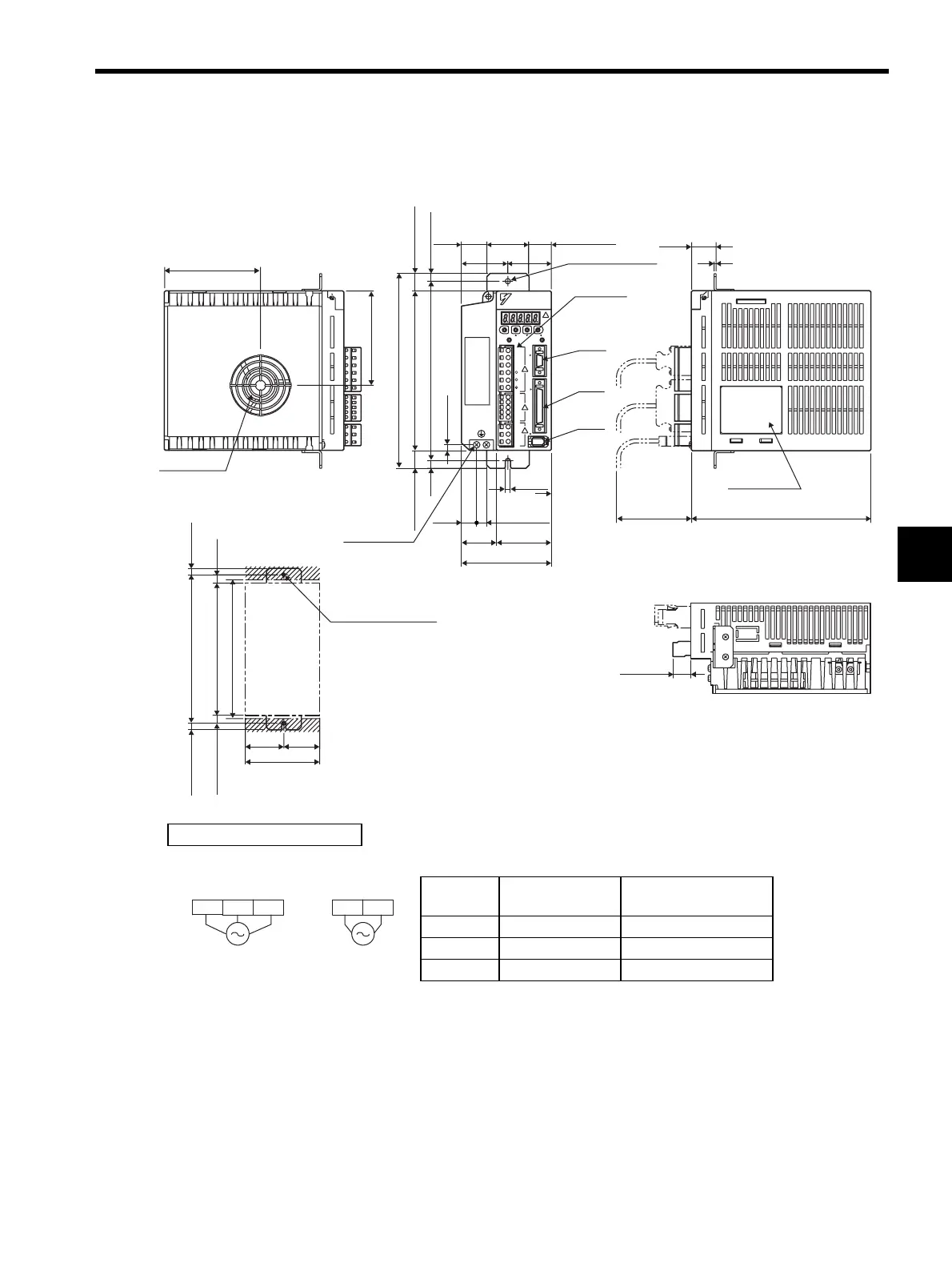
4.8 Dimensional Drawings of Rack-mounted SERVOPACK Model
4-27
4
4.8.3 Three-phase 200 V: 500 W/750 W/1.0 kW
(05AD-R to 10AD-R, 05ADA-R to 10ADA-R)
Mounting Hole Diagram
96.2 (3.79)
180 (7.09)
17 (0.67)
7.5 (0.30)
10 (0.39)*
160 (6.30)
90 (3.54)
180 (7.09)
94.4
(3.72)
7.5 (0.30)
7.5
(0.30)
195 (7.68)
160 (6.30)
17.5 (0.69)
17.5 (0.69)
6 (0.24)
90 (3.54)
55 (2.17)
35
(1.38)
10 (0.39)
15
(0.59)
5 (0.20)
42 (1.65)
46.5
(1.83)
43.5
(1.71)
25.5
(1.00)
2
(0.08)
24.5
(0.96)
φ
46.5
(1.83)
Cooling fan
7.5 (0.30)*
CN3
CN2
CN1
YASKAWA
YASKAWA
SERVOPACK200V
SGDM-
75* (2.95)
5 (φ 0.20) hole
180±0.5 (7.09±0.02)
Min.168 (6.61)
2×M4 screw holes
43.5
(1.71)*
10
(0.39)
22.5 (0.89)*
CHANGE
MODE/SET
DATA/
POWER
L1
C
N
3
L2
L3
L2C
B1
B2
B3
U
V
W
L1C
+ 1
+ 2
C
N
1
C
N
2
Ground
terminal
2×M4 screws
Terminal
block
Nameplate
(Mounting pitch)
* Reference length
Units: mm (in)
Approx. mass: 1.9 kg (4.19 lb)
External Terminal Connector
SERVOPACK Connector
Connector
Symbol
SERVOPACK
Connector Model
Manufacturer
CN1 10250-52A2JL Sumitomo 3M Co., Ltd.
CN2 53460-0611 Molex Japan Co., Ltd.
CN3 10214-52A2JL Sumitomo 3M Co., Ltd.
Three-phase
200 VAC
50/60 Hz
Single-phase
200 VAC
50/60 Hz
L2 L3L1 L1C L2C
Main circuit
power supply
Control power
supply
Artisan Technology Group - Quality Instrumentation ... Guaranteed | (888) 88-SOURCE | www.artisantg.com

Table of Contents

Related product manuals