EasyManua.ls Logo

YASKAWA SGMGH - Page 57

YASKAWA SGMGH
615 pages
To Next Page IconTo Next Page
To Next Page IconTo Next Page
To Previous Page IconTo Previous Page
To Previous Page IconTo Previous Page
Loading...
2 Selections
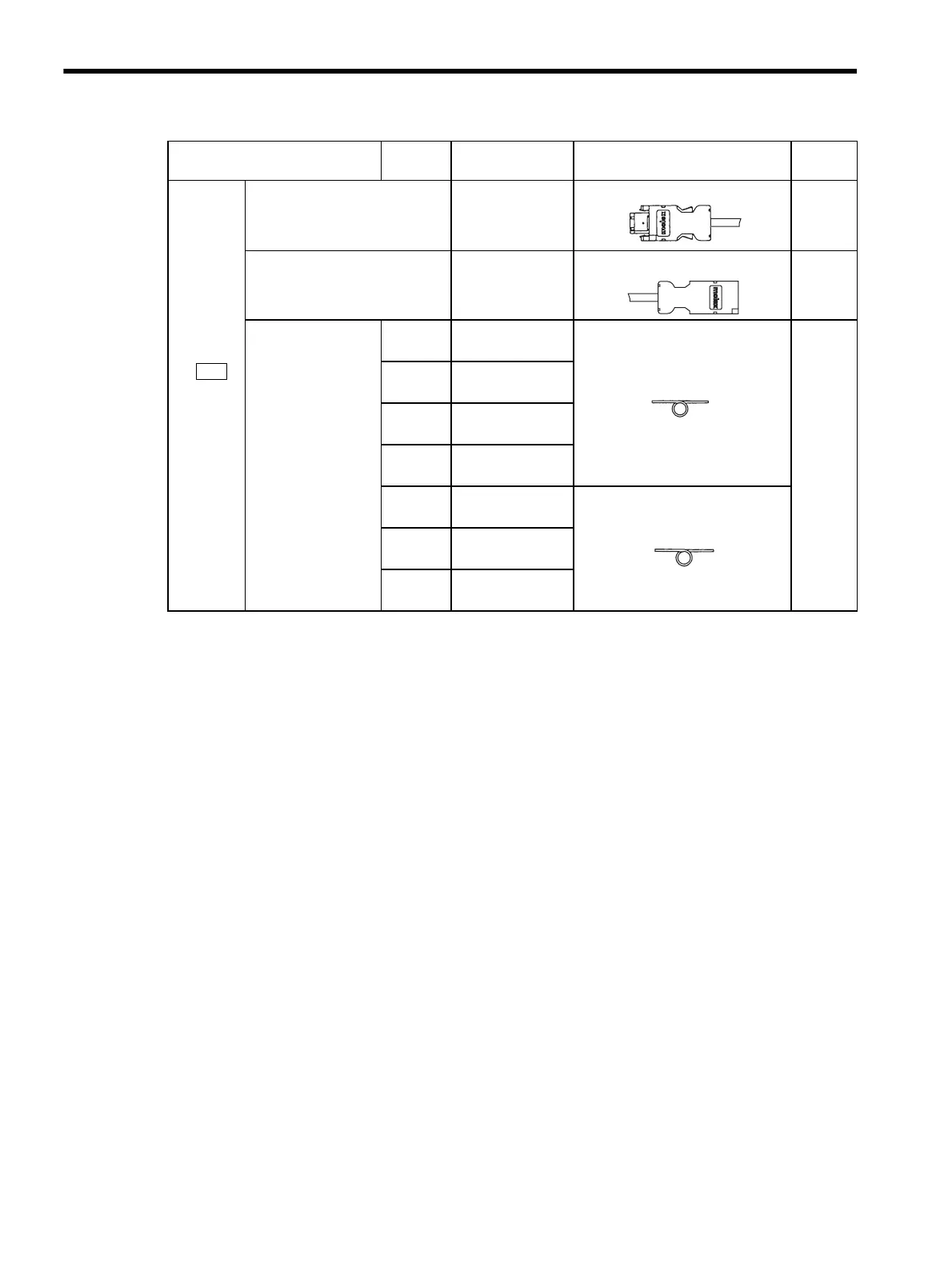
2.5.1 Cables for SGMAH and SGMPH Servomotors
2-20
c
Encoder
Cable
(Cont’d)
SERVOPACK end
connector kit
JZSP-CMP9-1
Soldered
5.5.1
Encoder end connector kit JZSP-CMP9-2
Soldered
5.4.3
5.4.5
5.5.1
Cables
5 m
(16.4 ft)
JZSP-CMP09-05
5.5.1
10 m
(32.8 ft)
JZSP-CMP09-10
15 m
(49.2 ft)
JZSP-CMP09-15
20 m
(65.6 ft)
JZSP-CMP09-20
30 m
(98.4 ft)
JZSP-CMP19-30
40 m
(131.2 ft)
JZSP-CMP19-40
50 m
(164.0 ft)
JZSP-CMP19-50
Name Length Type Specifications
Refer-
ence
CN2
20 m (65.6 ft) max.
50 m (164.0 ft) max.
Artisan Technology Group - Quality Instrumentation ... Guaranteed | (888) 88-SOURCE | www.artisantg.com

Table of Contents

Related product manuals