EasyManua.ls Logo

YOKOGAWA DY050

YOKOGAWA DY050
138 pages
To Next Page IconTo Next Page
To Next Page IconTo Next Page
To Previous Page IconTo Previous Page
To Previous Page IconTo Previous Page
Loading...
9-31
IM 01F06A00-01E
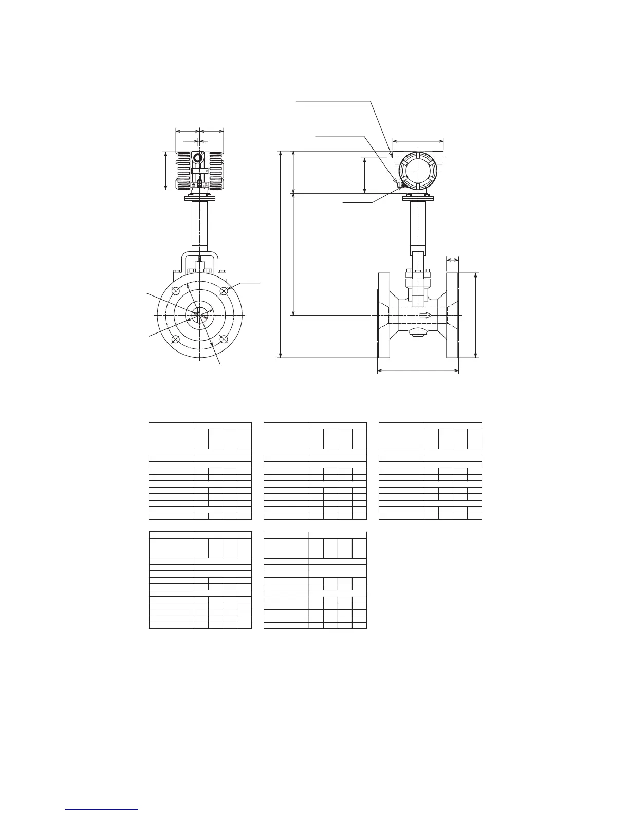
9. GENERAL DESCRIPTION
High Process Temperature Version Reduced Bore Type (/R2/HT): DY050-/R2/HT up to DY200-/R2/HT
φCS
φ
C
φJ
N- φG
170
51.1
25.7
DY050 /R2/HT
272
19
BA1
BS1
BP1
152.4
451.7
19.1
120.7
4
11
BA2
BS2
BP2
165.1
458.1
22.4
127
8
12.5
BJ1
155
453
16
120
4
10.4
BJ2
155
453
18
120
8
10.9
Model Code
Process
Connection
L
C
CS
D
H
H1
T
J
N
G
Weight kg
200
71
39.7
DY080 /R2/HT
279
BA1
BS1
BP1
190.5
477.8
23.9
152.4
4
19
16.6
BA2
BS2
BP2
209.6
487.3
28.4
168.2
8
22.4
20.4
BJ1
185
475
18
150
8
19
14
BJ2
200
482.5
22
160
8
23
16.6
Model Code
Process
Connection
L
C
CS
D
H
H1
T
J
N
G
Weight kg
270
138.8
71
DY150 /R2/HT
318
BA1
BS1
BP1
279.4
561.2
25.4
241.3
8
22.4
43.3
BA2
BS2
BP2
317.5
580.3
36.6
269.7
12
22.4
61.3
BJ1
280
561.5
22
240
8
23
40.3
BJ2
305
574
28
260
12
25
50.3
Model Code
Process
Connection
L
C
CS
D
H
H1
T
J
N
G
Weight kg
220
93.8
51.1
DY100 /R2/HT
301
8
BA1
BS1
BP1
228.6
518.8
23.9
190.5
19
25.9
BA2
BS2
BP2
254
531.5
31.8
200.2
22.4
34.4
BJ1
210
509.5
18
175
19
21.3
BJ2
225
517
24
185
23
25.3
Model Code
Process
Connection
L
C
CS
D
H
H1
T
J
N
G
Weight kg
310
185.6
93.8
DY200 /R2/HT
333
BA1
BS1
BP1
342.9
608
28.4
298.5
8
22.4
71.9
BA2
BS2
BP2
381
627
41.1
330.2
12
25.4
96.9
BJ1
330
601.5
22
290
12
23
61.9
BJ2
350
611.5
30
305
12
25
68.9
Model Code
Process
Connection
L
C
CS
D
H
H1
T
J
N
G
Weight kg
H1
φ
D
T
L
125
φ94
4.5
H
5959
87.5
103.5
CLAMP
EARTH TERMINAL
ELECTRICAL CONNECTION
Only For
TIIS Explosion proof
KEMA Explosion proof

Table of Contents

Related product manuals