EasyManua.ls Logo

YOKOGAWA DY050

YOKOGAWA DY050
138 pages
To Next Page IconTo Next Page
To Next Page IconTo Next Page
To Previous Page IconTo Previous Page
To Previous Page IconTo Previous Page
Loading...
9-32
IM 01F06A00-01E
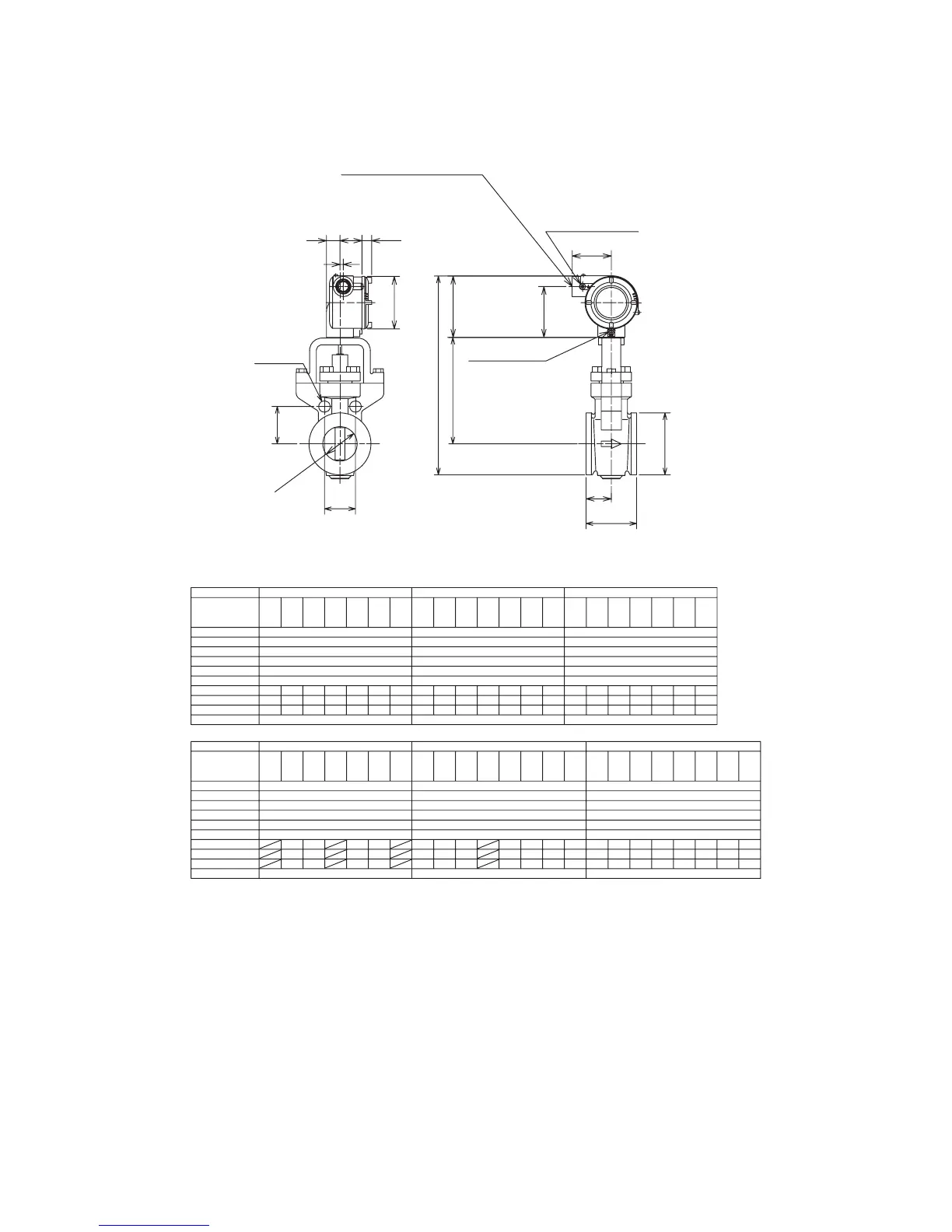
9. GENERAL DESCRIPTION
Stainless Steel Housing: DY015-/E1 up to DY100-/E1
Wafer Type
Unit: mm
(approx. inch)
ELECTRICAL CONNECTION
JIS G1/2 Female
ANSI 1/2NPT Female
ISO M201.5 Female
Only for
KEMA Explosionproof
CLAMP
EARTH TERMINAL
L
B
φD
H
20
5
32.5
2 - φG
φC
14.5
58
φ78
91H1
75.5
F
E
6.1
75
37.5
51.1
92
295
158
DY050 (50A) /E1
AJ4
49.8
60.1
17
AP1
AA1
AP2
AA2
48.6
58.7
17
AP4
AA4
48.6
58.7
17
AD1
to
AD4
AJ1 AJ2
45.9
55.4
17
70
35
14.6
35.1
235.5
127
70
35
25.7
50.8
245.4
129
70
35
39.7
73
263.5
136
DY015 (15A) /E1 DY025 (25A) /E1
2.9 3.8 4.4
AJ4
56.6
28.3
17
AP1
AA1
42.7
21.4
14
AP2
AA2
47.1
23.5
14
AP4
AA4
47.1
23.5
14
AD1
to
AD4
46
23
13
AJ1
49.5
24.7
13
AJ2
49.5
24.7
13
AJ4
67.2
33.6
17
AP1
AA1
56
28
14
AP2
AA2
62.9
31.4
17
AP4
AA4
62.9
31.4
17
AD1
to
AD4
60.1
30.1
13
AJ1
63.6
31.8
17
AJ2
63.6
31.8
17
DY040 (40A) /E1
AJ4
84.9
42.4
21
AP1
AA1
69.7
34.8
14
AP2
AA2
80.8
40.4
20
AP4
AA4
80.8
40.4
20
AD1
to
AD4
77.8
38.9
17
AJ1
74.2
37.1
17
AJ2
74.2
37.1
17
Model Code
Process
Connection
L
B
C
D
H
H1
E
F
G
Weight kg
100
40
71
127
329.5
175
120
50
93.8
157.2
359.6
190
DY080 (80A) /E1 DY100 (100A) /E1
9.5 12.9
AJ4
65.1
78.5
21
AP1
AA1
AP2
AA2
64.4
77.7
20
AP4
AA4
64.4
77.7
20
AD1
to
AD2
61.2
73.9
17
AD3
to
AD4
61.2
73.9
17
AJ1
57.4
69.3
17
AJ2
61.2
73.9
21
AJ4
78.5
94.7
23
AP1
AA1
72.9
88
17
AP2
AA2
76.6
92.5
20
AP4
AA4
82.6
99.7
23
AD1
to
AD2
68.9
83.1
17
AD3
to
AD4
72.7
87.8
21
AJ1
67
80.8
17
AJ2
70.8
85.5
21
Model Code
Process
Connection
L
B
C
D
H
H1
E
F
G
Weight kg

Table of Contents

Related product manuals