EasyManua.ls Logo

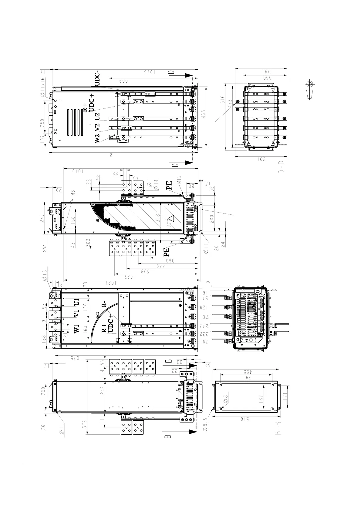
ABB ACS800-04M - Frame Size R7 with DC Busbars on both Sides (MM)

ABB ACS800-04M
162 pages
To Next Page IconTo Next Page
To Next Page IconTo Next Page
To Previous Page IconTo Previous Page
To Previous Page IconTo Previous Page
Loading...
Dimensional drawings
124
Frame size R7 with DC busbars on both sides (mm)
64796003_2/7 G
Fastening bracket
for wall mounting only
Bilateral busbar

Table of Contents

Other manuals for ABB ACS800-04M

Related product manuals