EasyManua.ls Logo

ABB ACS800-104

ABB ACS800-104
46 pages
To Next Page IconTo Next Page
To Next Page IconTo Next Page
To Previous Page IconTo Previous Page
To Previous Page IconTo Previous Page
Loading...
36 Technical data
Note: Supply from semiconductor safety output with test pulse may lead to unnecessary
trips. Contact ABB for further information.
ASTO board according to frame size of the module
Note: In frame sizes R2…R6 of the ACS800-01, -U1, -04, -04M, -04LC, -U4, -11, -U11, -31
and -U31 drives the ASTO board is ASTO-11 with enclosure. In frames R7…R8 and
R2i…R8i the ASTO board is inside the drive module.
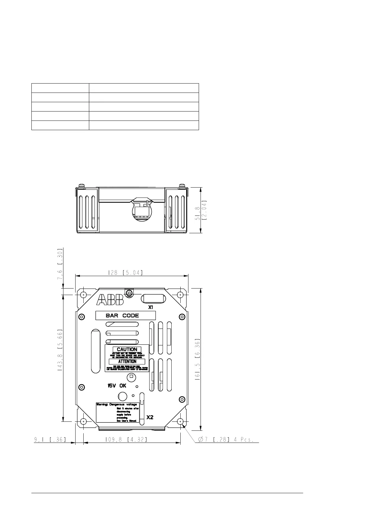
Dimensions of the ASTO board with enclosure
Frame size ASTO-11/21 board
R2i…R5i ASTO-11
R2…R6 ASTO-11
R7i…R8i ASTO-21
R7…R8 ASTO-21
3AUA0000068698

Table of Contents

Other manuals for ABB ACS800-104

Related product manuals