EasyManua.ls Logo

ABB ACS850 - Page 133

ABB ACS850
260 pages
Print Icon
To Next Page IconTo Next Page
To Next Page IconTo Next Page
To Previous Page IconTo Previous Page
To Previous Page IconTo Previous Page
Loading...
Parameters 133
23.13 SpeedErr win lo Defines the lower boundary of the speed error window.
Depending on setting of parameter 23.11 SpeedErr winFunc,
this is either an absolute value or relative to speed reference.
0 … 3000 rpm Lower boundary of speed error window. 1 = 1 rpm
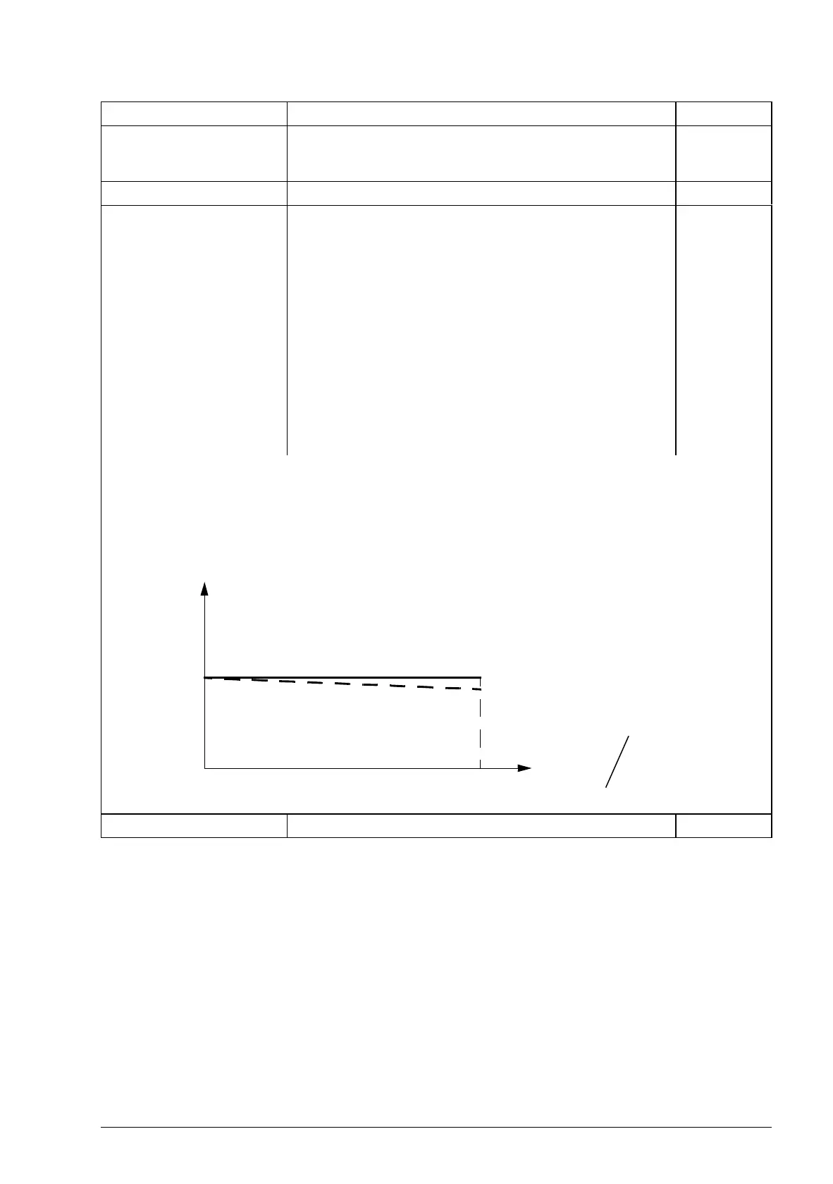
23.14 Drooping rate Defines the droop rate (in percent of the motor nominal
speed). The drooping slightly decreases the drive speed as
the drive load increases. The actual speed decrease at a
certain operating point depends on the droop rate setting and
the drive load (= torque reference / speed controller output).
At 100% speed controller output, drooping is at its nominal
level, i.e. equal to the value of this parameter. The drooping
effect decreases linearly to zero along with the decreasing
load.
Droop rate can be used e.g. to adjust the load sharing in a
Master/Follower application run by several drives. In a
Master/Follower application the motor shafts are coupled to
each other.
The correct droop rate for a process must be found out case
by case in practice.
0.00 … 100.00% Droop rate. 100 = 1%
No. Name/Value Description FbEq
Motor speed in
% of nominal
100%
Speed decrease = Speed controller output × Drooping × Max. speed
Example: Speed controller output is 50%, droop rate is 1%, maximum speed of the drive is
1500 rpm.
Speed decrease = 0.50 × 0.01 × 1500 rpm = 7.5 rpm.
100%
23.14 Drooping rate
No drooping
D
r
o
o
p
i
n
g
Speed controller
output / %
Drive load

Table of Contents

Other manuals for ABB ACS850

Related product manuals