EasyManua.ls Logo

ABB REF615 J - Recommended Third-Party Industrial Ethernet Switches

ABB REF615 J
896 pages
Print Icon
To Next Page IconTo Next Page
To Next Page IconTo Next Page
To Previous Page IconTo Previous Page
To Previous Page IconTo Previous Page
Loading...
3
1
X24
2
1
3
2
X15
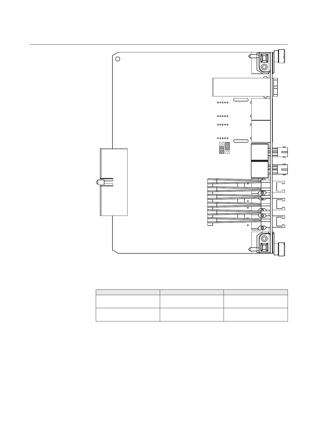
GUID-E54674FD-2E7F-4742-90AB-505772A0CFF4 V1 EN
Figure 470: Jumper connections on communication module COM0034
Table 688: X9 Optical ST jumper connectors
Group
Jumper connection Description
X15 1-2
2-3
Star topology
Loop topology
X24 1-2
2-3
Idle state = Light on
Idle state = Light off
13.3.9 Recommended third-party industrial Ethernet switches
RuggedCom RS900
RuggedCom RS1600
RuggedCom RSG2100
1YHT530004D05 D Section 13
IED physical connections
615 series 869
Technical Manual

Table of Contents

Related product manuals