EasyManua.ls Logo

Aksa APD 12E - Yük Bağlantıları

Aksa APD 12E
Print Icon
To Next Page IconTo Next Page
To Next Page IconTo Next Page
To Previous Page IconTo Previous Page
To Previous Page IconTo Previous Page
Loading...
11
tarafından taşınması gerekir. Eğer binanın tavanı egzoz
sistemi ağırlığını taşıyamayacak durumda ise oda zemi-
ninden demir konstrüksiyon ile egzoz sisteminin taşın-
ması gerekir.
Egzoz sistemi kaza ile dokunmalara karşı zeminden 2
– 3 metre yukarıda yapılması gerekir. Paslanmaz çelik
kompensatör sabit egzoz sistemi ile motor egzoz mani-
foldu arasına monte edilmesi gerekir.
Egzoz sisteminin jeneratör odasındaki bölümünün da-
yanıklı taş yünü ile kaplanması ve izolasyon üzeri alü-
minyum veya galvaniz sac ile kaplanması iyi olacaktır.
Dolayısı ile operatör yaralanması ve jeneratör odasında
meydana gelecek ısı yükselmesi azalacaktır.
Soğutma ve Havalandırma
Motor, alternatör ve egzoz boruları ısı yayarak ortam
sıcaklığının artmasına sebep olurlar. Sıcaklığın artması ise
jeneratörün çalışmasını olumsuz yönde etkiler. Bu ne-
denle motor ve alternatörün soğuk tutulması için yeter-
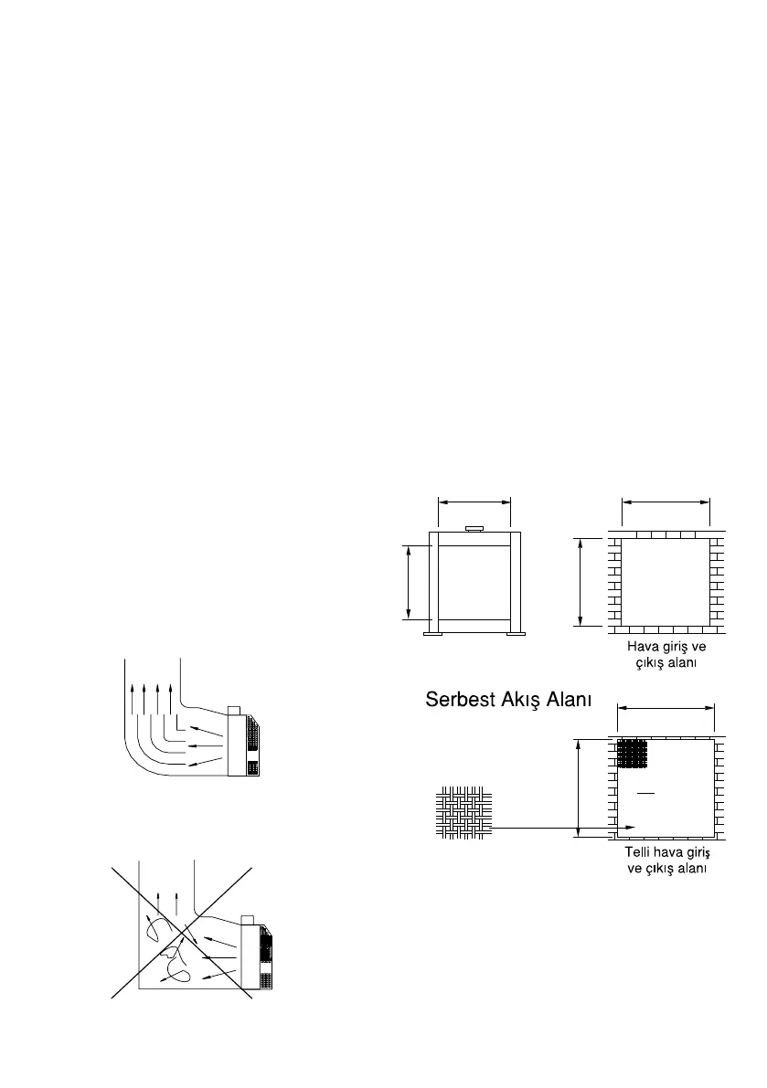
li havalandırmanın sağlanması gerekir. Hava akışının Şe-
kil 3.4 de görüldüğü gibi olması gerekir. Hava alternatör
tarafından jeneratör odasına girmeli, motor üzerinden
ve radyatör içerisinden geçerek çadır bezinden körük
tipinde esnek bir branda yardımıyla odadan çıkmalıdır.
Eğer sıcak havanın odanın dışına atılması için bir branda
kullanılmaz ise fan, sıcak havayı jeneratör odasına yaya-
rak soğutmanın etkinliğini azaltır.
Şekil 6.3. Saptırma kanalları ile radyatörden atılan hava-
nın yönlendirilmesi
Şekil 6.4. Zayıf havalandırma tertibatı
Radyatör sıcak hava atış kanalı veya bacasında keskin
köşe yapılmasından kaçınılmalıdır. Dışarı atılan havayı
döndürmek için yönlendirici şekilde düzenleme yapıl-
malıdır.
Odaya hava girişinin ve odadan hava çıkışının kolay
olması için hava giriş ve çıkış pencerelerinin yeterince
büyük olması gerekir. Kaba bir hesapla hava giriş ve çıkış
pencereleri radyatör alanının en az 1.5 katı büyüklüğün-
de olmalıdır.
Jeneratörün hava şartlarından etkilenmemesi için giriş
ve çıkış pencerelerinin panjurları olmalıdır.
Bu panjurlar sabit olabilir ancak soğuk iklimler için hare-
ketli olması tercih edilmelidir. Jeneratör çalıştırılmadığın-
da panjurlar kapatılabilir. Böylece ilk çalıştırma ve yüke
vermeyi kolaylaştıran sıcak hava odada kalır. Otomatik
kontrol sistemli bir jeneratör odasında eğer panjurlar
hareketli ise bunlar otomatik olarak hareket ettirilebilir.
Yani motorun çalışmaya başlamasıyla birlikte panjurların
hemen açılması ve motorun durmasıyla da panjurların
kapanması sağlanabilir.
Şekil 6.5. Hava giriş çıkış alanı
6.4. Yük Bağlantıları
Bir Jeneratör sahibi olarak, binanızda sizin için önemli
olan elektrik bağlantılarını açık bir şekilde belirlediğiniz-
den emin olunuz. Ayrıca kurulumu yapacak kişilerinde
sizin için önemli olan bu bağlantıları iyi bir şekilde anla-
1.2m
1.44m
2
1.2m
Ön radyatör
Matris Alanı
1.34m
1.34m
1.44m
2
+ 25%
=1.80m
2
= 2.25m
2
1.8
0.8
1.5m
Telli panjur
açık alanı
1.5m

Table of Contents

Related product manuals