EasyManua.ls Logo

American Eagle 30P - Typical Hydraulic Circuit for Compressor with Auxiliary Cooler

American Eagle 30P
28 pages
Print Icon
To Next Page IconTo Next Page
To Next Page IconTo Next Page
To Previous Page IconTo Previous Page
To Previous Page IconTo Previous Page
Loading...
Page 10 | American Eagle
®
30P Compressor Manual
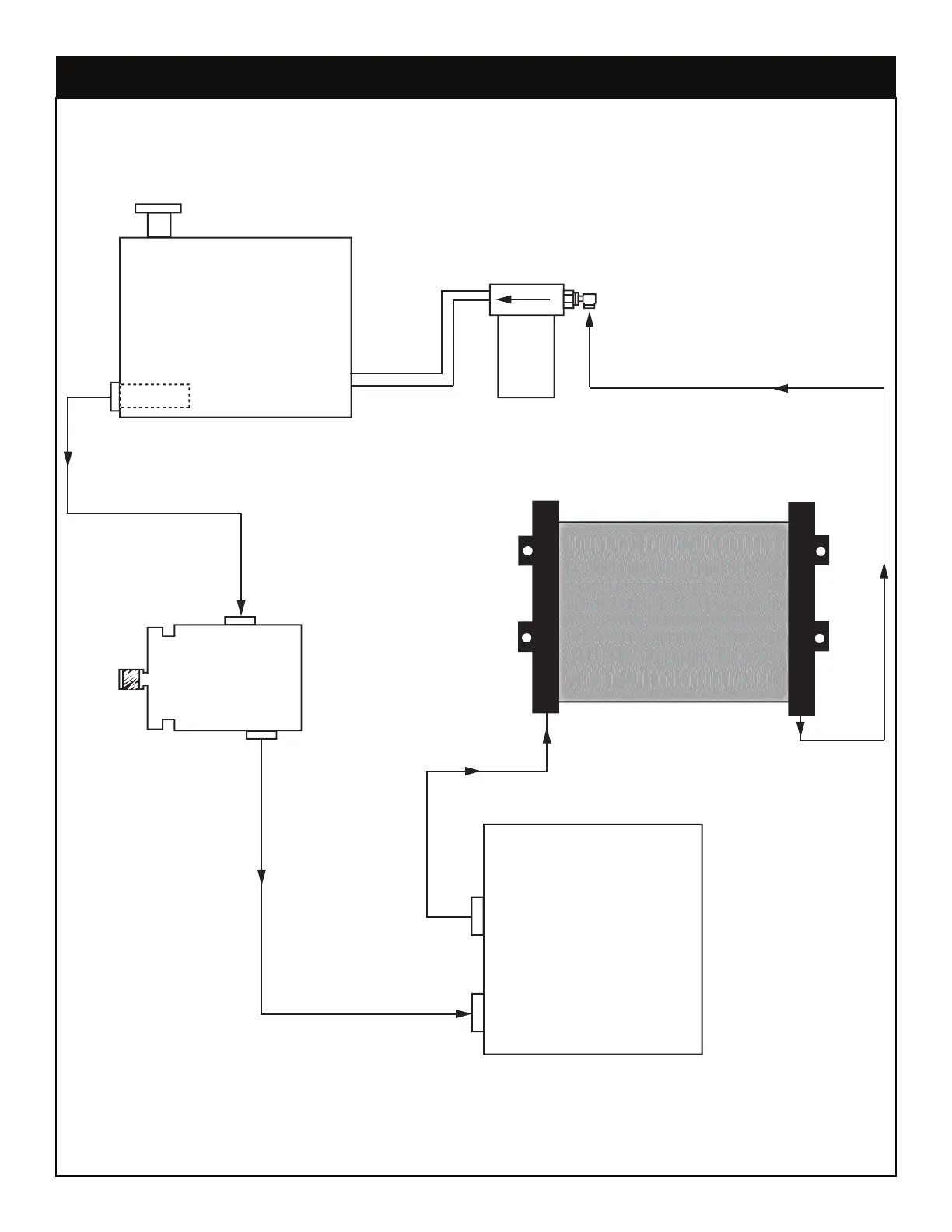
Typical Hydraulic Circuit for Compressor with Auxiliary Cooler
COMPRESSOR
RETURN
PRESSURE
AUXILIARY
COOLER
SINGLE
HYDRAULIC
PUMP
SUCTION PORT
FILTER
FILTER SCREEN
HYDRAULIC
RESERVOIR

Related product manuals