EasyManua.ls Logo

Argo AG4HP061PH - Operating Principle of the Unit

Argo AG4HP061PH
64 pages
Print Icon
To Next Page IconTo Next Page
To Next Page IconTo Next Page
To Previous Page IconTo Previous Page
To Previous Page IconTo Previous Page
Loading...
Air-to-water Heat Pump
17
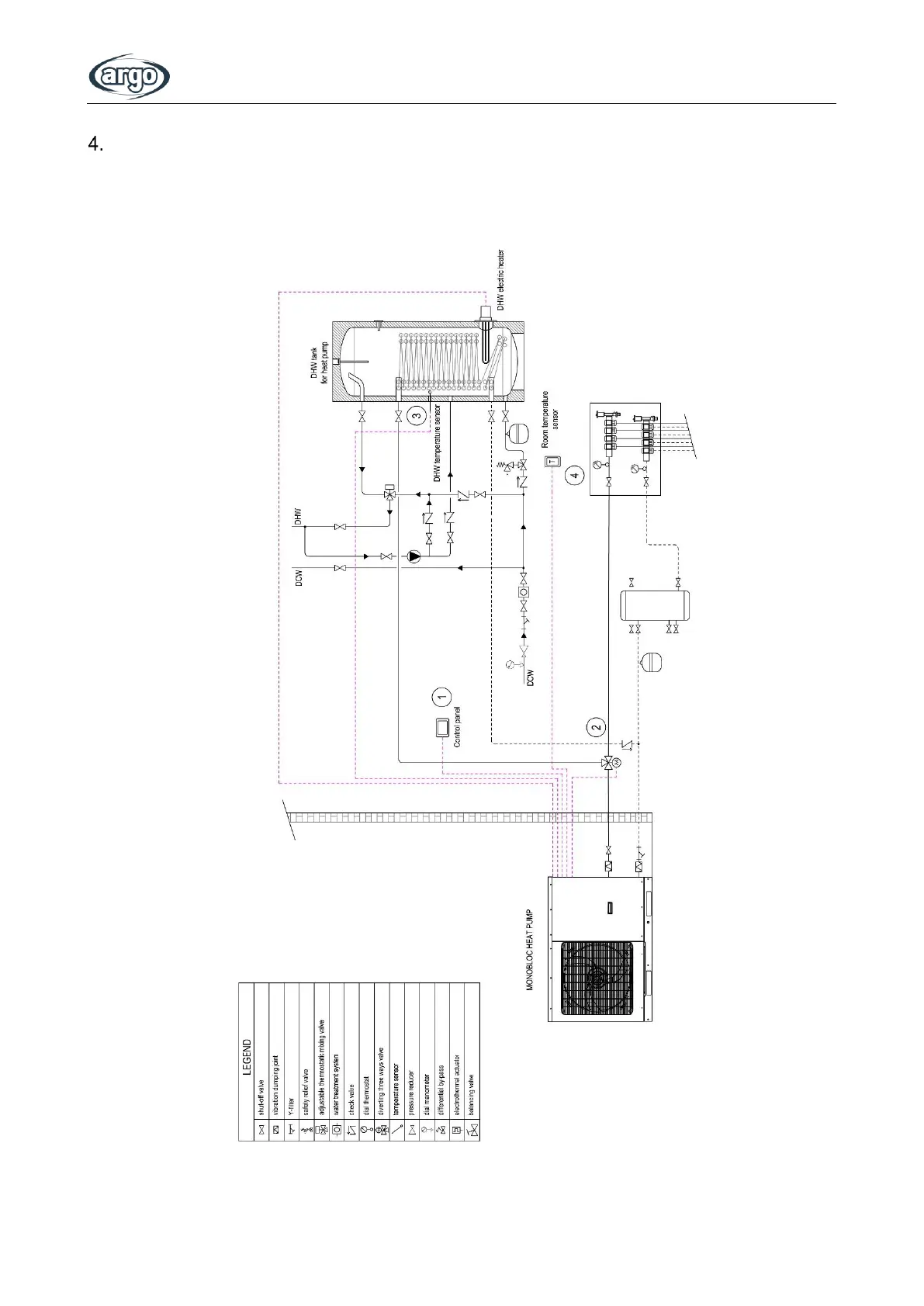
Radiant floor heating with single thermal zone and DHW with 3-way valve and
tank
Warning: basic diagram! It does NOT supersede the specific system project!
This system diagram does NOT include the necessary safety and shut-off elements for a correct installation.
Please meet the relevant laws and standards.

Table of Contents

Related product manuals