EasyManua.ls Logo

Atlantic Alfea Evolution 5 - Page 46

Atlantic Alfea Evolution 5
56 pages
Print Icon
To Next Page IconTo Next Page
To Next Page IconTo Next Page
To Previous Page IconTo Previous Page
To Previous Page IconTo Previous Page
Loading...
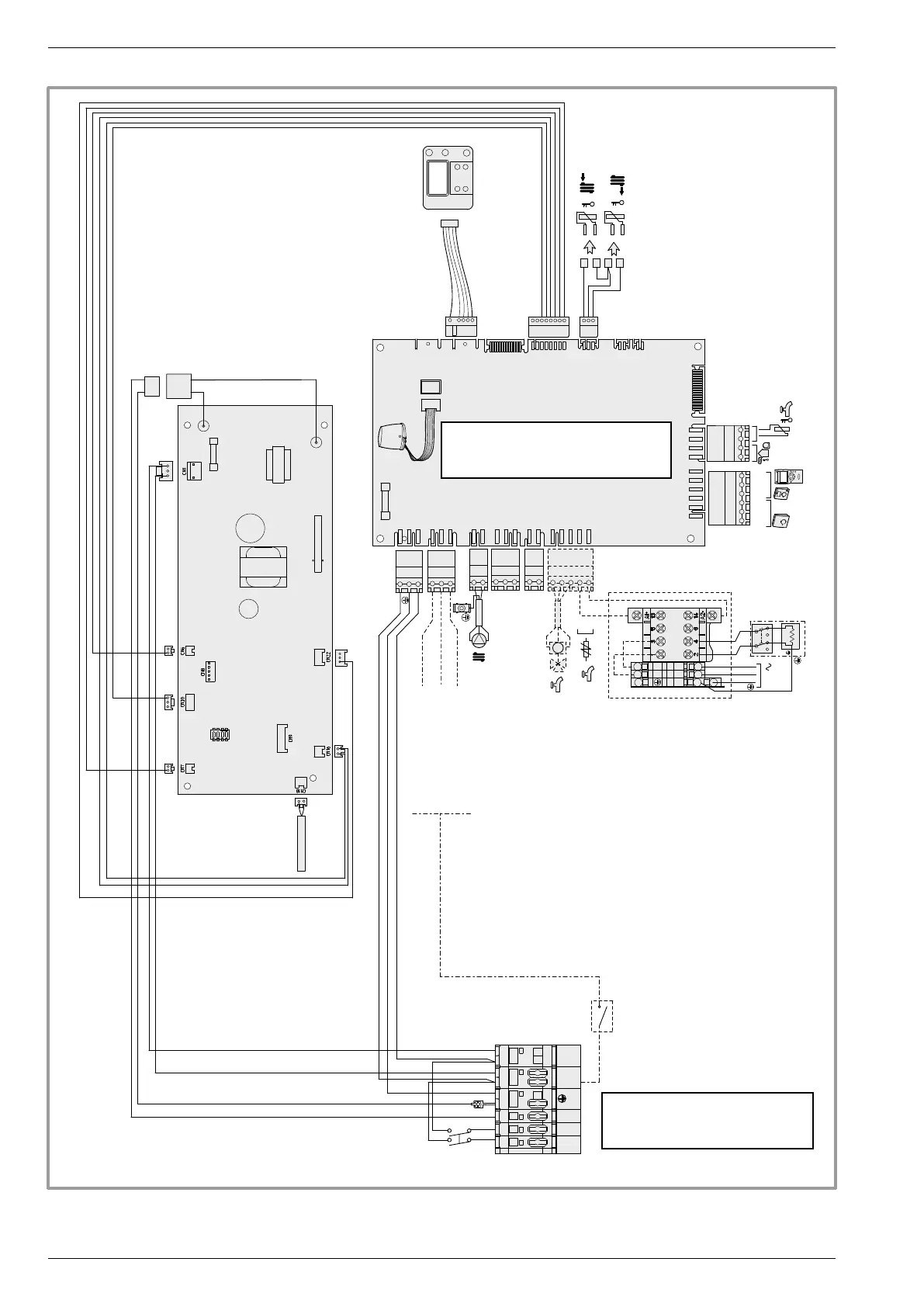
gure 41 - Electrical wiring Hydraulic unit (Except installer's connections)
X10
X11
X12
X13
X14
X15
X30
X50
X70
X75
X80
X82
X83
X84
X86
X100
1
2
3
4
5
6
1
2
3
C.C
X60
Defauts externes/
External defaults
Delestage /Power shedding
Tarifs (HP/HC; Jour/Nuit)
Taris peak times/ o-peak times
Ou/
Or
Ou/
Or
0/I
M
2a
1a
1b
2b
EX1
EX2
EX3
L
N
B2
M
B1
3
2
1
RP ECS
L
N
L
N
230V
Contact d'organe externe
External device connexion
1
2
3
4
5
L
N
COM
L
Sonde Condensation/
Condensation Sensor
Départ /
Flow sensor
Retour /
Return sensor
Condensation
sensor
External
component contact
Return sensor
Initial sensor
Heating
circulation pump
Power shedding or EJP
peak times/off-peak times
External fault
Start/stop
switch
Connections to the heat pump
regulator, accessories and options
(see gure 38, page 27).
Connection to terminal block
and power relays
(see gure 37, page 26).
Installation and operation manual "1397 - EN"
Heat pump split single service alféa Evolution
- 46 -

Related product manuals