EasyManua.ls Logo

Bard CH Series - Figure 12 Vent Installation;Removal Clearance Required; Table 1 Clearance Required for Service Access and Adequate Condenser Airflow; Table 2 Minimum Clearances Required to Combustible Materials

Bard CH Series
50 pages
Print Icon
To Next Page IconTo Next Page
To Next Page IconTo Next Page
To Previous Page IconTo Previous Page
To Previous Page IconTo Previous Page
Loading...
Manual 2100-769A
Page 18 of 50
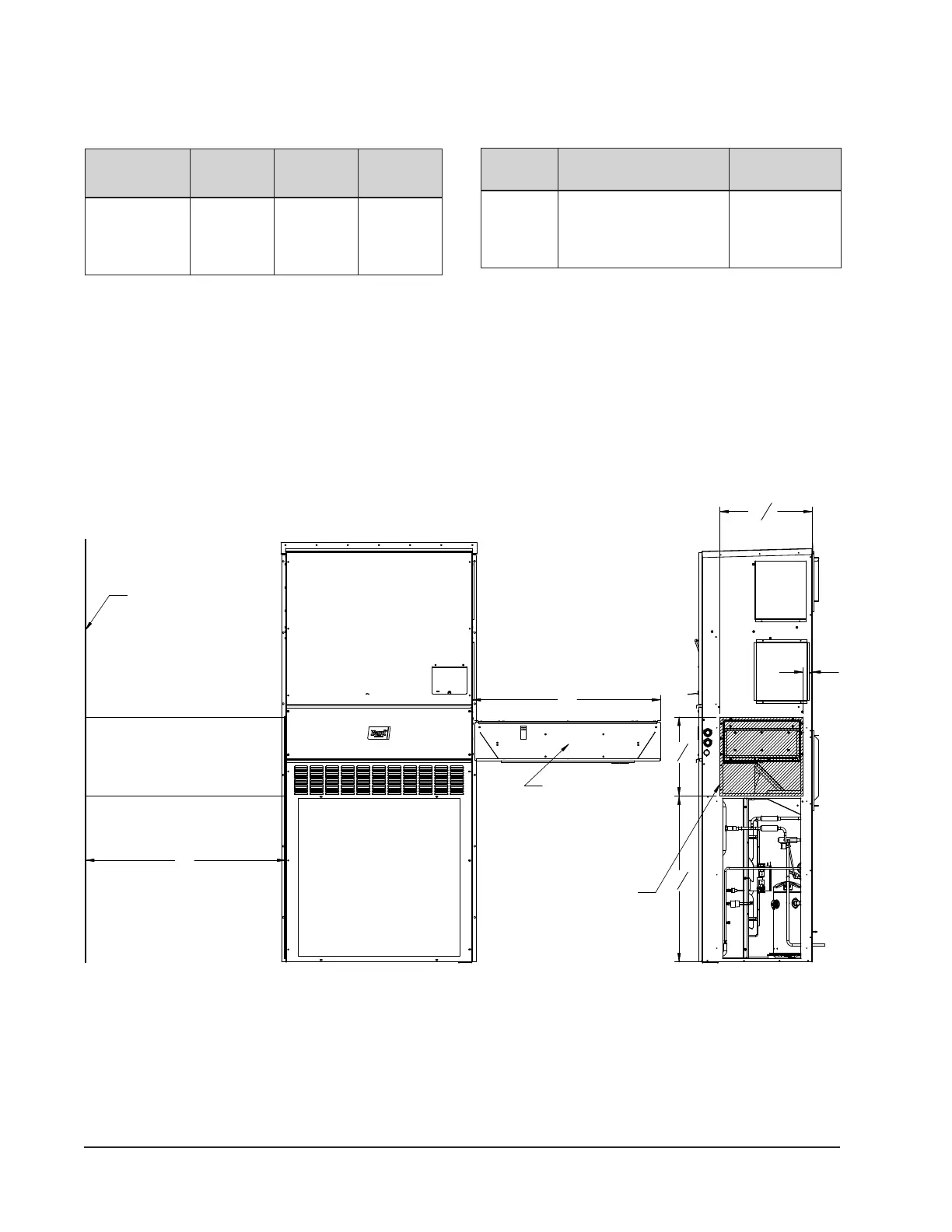
* For vent installation and removal, one side of the unit
requires 45" clearance in the vent area. See Figure
12 for clarity.
See Specications Sheet S3630.
TABLE 1
Clearance Required for Service Access and
Adequate Condenser Airow
Model
Left
Side*
Right
Side*
Discharge –
Front
C36HY
C42HY
C48HY
C60HY
20" 20" 10'
TABLE 2
Minimum Clearances Required
to Combustible Materials
Model Supply Air Duct (1st 3') Cabinet
C36HY
C42HY
C48HY
C60HY
1/4" 0"
FIGURE 12
Vent Installation/Removal Clearance Required
45"
20
3
4
"
2"
37
1
4
"
17
3
4
"
MIS-4042 A
OBJECT OR WALL
IN THIS SECTION OR ANY
OTHER OBSTRUCTION
OF UNIT
OR RIGHT SIDE OF UNIT
CLEARANCE NEEDED ON LEFT
VENT ASSEMBLY
SHOWN OUTSIDE
AVOID LOCATING UNIT DISCONNECT
VENTS CAN BE INSTALLED
FROM EITHER SIDE OF UNIT.
45"
KEEP AREA
CLEAR FOR 45"
IN FRONT OF
SIDE PANEL

Table of Contents

Related product manuals