EasyManua.ls Logo

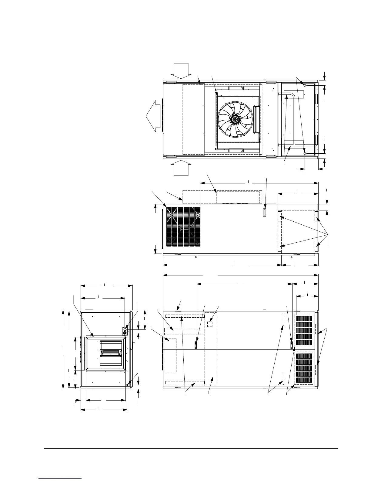
Bard I30H1 - Figure 1 Unit Dimensions

Bard I30H1
59 pages
Print Icon
To Next Page IconTo Next Page
To Next Page IconTo Next Page
To Previous Page IconTo Previous Page
To Previous Page IconTo Previous Page
Loading...
Manual 2100-549G
Page 7 of 59
3
3
4
"
24
1
2
"
22
1
4
"
Lower
Section
71
3
4
"
Upper
Section
Sleeve
Inner
Return
Sleeve
Outer
Sleeve
Inner
Air
Return
Sleeve
Outer
Air
Supply
Air
(2) Opt.
Unit Drain
Entrances
"
8
3
1
8"
3
1
8
"
High Voltage
Entrance
Entrance
Low Voltage
20" x 24" Supply Frame
24"
1
"
8
4
2"
26 "
8
1
28
4
"
"
3
"
3
Total Depth
8
"
1
2
4
4
11
20"
7
1
" 11
4
" Total Width
31
5
47
3
46
1
8
" With Sides Removed
Vent Intake
Disconnect
Electrical
Air Filters
Vent Exhaust
Door Latch
Locking
Filters
Return Air
(2) 12" x 20"
Door Latch
Locking
Air Filters
(2) Washable
Hinges
(4) Lift-Off
Control Panel
Electric Heat
Wire Channel
(2) 2"x24"x30"
Front Forklift Holes
(Remove Front Trim)
"
5
58"
"
15
8
4
13
1
94"
Total
Height
(2) Return
Openings
Side Forklift Holes
(Remove Sides)
2
" 71
1
30" With Doors and
Sides Removed
Unit Specification Sheet
Top View
Right Side View
Front View
MIS-2917 A
(2) Unit
Drains
(2) Side
Handles
Back View
FIGURE 1
UNIT DIMENSIONS

Table of Contents

Related product manuals