EasyManua.ls Logo

Berges ACP micro 3000 - Mains Filters;Output Chokes

Berges ACP micro 3000
76 pages
Print Icon
To Next Page IconTo Next Page
To Next Page IconTo Next Page
To Previous Page IconTo Previous Page
To Previous Page IconTo Previous Page
Loading...
21.12.98 Operating manual
04_GB ACP 3000 — 0.37–15.0
13
Berges electronic D–51709 Marienheide-Rodt Tel. 02264/17-0 Fax 02264/17126
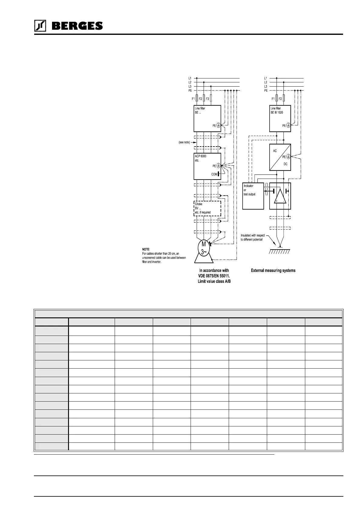
The converter and accessories must be wired in accordance with the following schematic.
To render the remaining interference voltage at the PE conductor potential ineffective for
“external measurement systems”, the following proposed circuit will achieve successful re-
sults if applied consistently.
3.3.2 Mains Filters/Output Chokes
ACP 3000
DEVICE TYPE MAINS FILTER ARTICLE NO. INPUT PHASES VOLTAGE (V) CURRENT (A) WEIGHT (kg) FOOTPRINT
ACP 3300-3 BE I 1005 32501739 1~ 250 5 0.60
(1)
(1) FOOTPRINT means that these filters have been prepared for the installation of an ACP converter on the filter (securing).
ACP 3300-5 BE I 1005 32501739 1~ 250 5 0.60
(1)
ACP 3300-7 BE II 1010 32501740 1~ 250 10 0.70
(1)
ACP 3301-1 BE II 1010 32501740 1~ 250 10 0.70
(1)
ACP 3301-5 BE III 1020 32501741 1~ 250 20 1.05
(1)
ACP 3302-2 BE III 1020 32501741 1~ 250 20 1.05
(1)
ACP 3600-7 BE I 3003 32501742 3~ 380/480 3 0.75
(1)
ACP 3601-5 BE II 3005 32501743 3~ 380/480 5 0.80
(1)
ACP 3602-2 BE III 3012 32501744 3~ 380/480 12 1.15
(1)
ACP 3603-0 BE III 3012 32501744 3~ 380/480 12 1.15
(1)
ACP 3604-0 BE III 3012 32501744 3~ 380/480 12 1.15
(1)
ACP 3605-5 BE IV 3038 32501745 3~ 380/480 38 1.90
(1)
ACP 3607-5 BE IV 3038 32501745 3~ 380/480 38 1.90
(1)
ACP 3611-0 BE IV 3038 32501745 3~ 380/480 38 1.90
(1)
ACP 3615-0 BE IV 3038 32501745 3~ 380/480 38 1.90
(1)
StockCheck.com

Table of Contents

Related product manuals