EasyManua.ls Logo

Bitzer KT-230-2 - Page 48

Bitzer KT-230-2
86 pages
Print Icon
To Next Page IconTo Next Page
To Next Page IconTo Next Page
To Previous Page IconTo Previous Page
To Previous Page IconTo Previous Page
Loading...
KT-230-248
1 2 3 4
CN1
L N
CN2
K2control
Supply
Supply
K1control
RelayC
RelayNC
CN3
HPS
HPS
CN4
Heater
Heater
CN5
Add. fan
Add. fan
CN6
CR-1
CR-1
CR-2
CR-2
CR-3
CR-3
Injection
Injection
5 6 7 8
CN7
1 2 3 4 1 2
CN9
CN10
1 2 3 4 5 6
CN12
1 2 3 4
CN11
1 2
CN13
1 2 3 4
CN14
24 upVS
GND
Signal
GND
PTC
PTC
Signal
GND
Signal
GND
5 upVS
Signal
GND
5 upVS
Signal
GND
Input
GND
Data+
Data–
24V Sup
24 upVS
GND
Signal
GND
21 3 4 1 2 1 N 1 N 1 N 3 N 5 N 7 N
CM RC- -01
4321 876
5
13
1211
109
14
15
16
17
18 19 20
21 22 23
F2
L1
L2
L3
PE
F1
Q1
1
0
F17
PE
H3
423
K11K10
Y3-2
Y5
grey/grau/gris
brown/braun
orangepink
rosa
blue/blau
F4
B6
B7
Modbus
RS485
PE
R7
PE
R8
M2
Y3-1
1 2
CT
CT
CN8
1
3
2
1
3
2
F5
P>
F4
Y3-3
(2 5-71-49)CP
(2 5-71-47)CP
OLC-D1
DP-1
CN9:3
CN9:4
230V
T1
M
1"
Details concerning connections see inside the terminal box.
Details zum Anschluss siehe Innenseite des Anschlusskastens.
Détails sur le raccordement voir intérieur de la boîte de raccordem.
GND-COM
S1
01
S2
F30
4A F
F3
4A T
K10
N1
3~
3~
M 3"
M1
R1..6
K10
STO B1
B1
K11
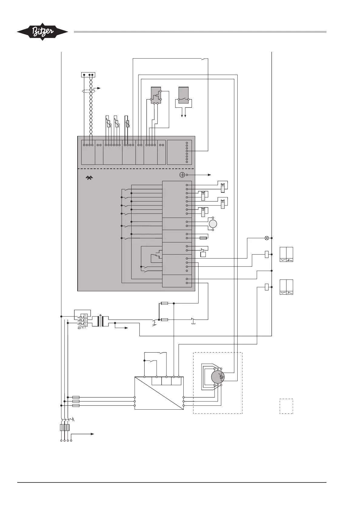
Abb.9: Prinzipschaltbild für FU-Betrieb mit integriertem STO, vollausgestatteter Verdichter ohne Leistungsregler und ohne Anlaufentlastung

Table of Contents

Related product manuals