EasyManua.ls Logo

BMW E36 - Page 192

BMW E36
386 pages
Print Icon
To Next Page IconTo Next Page
To Next Page IconTo Next Page
To Previous Page IconTo Previous Page
To Previous Page IconTo Previous Page
Loading...
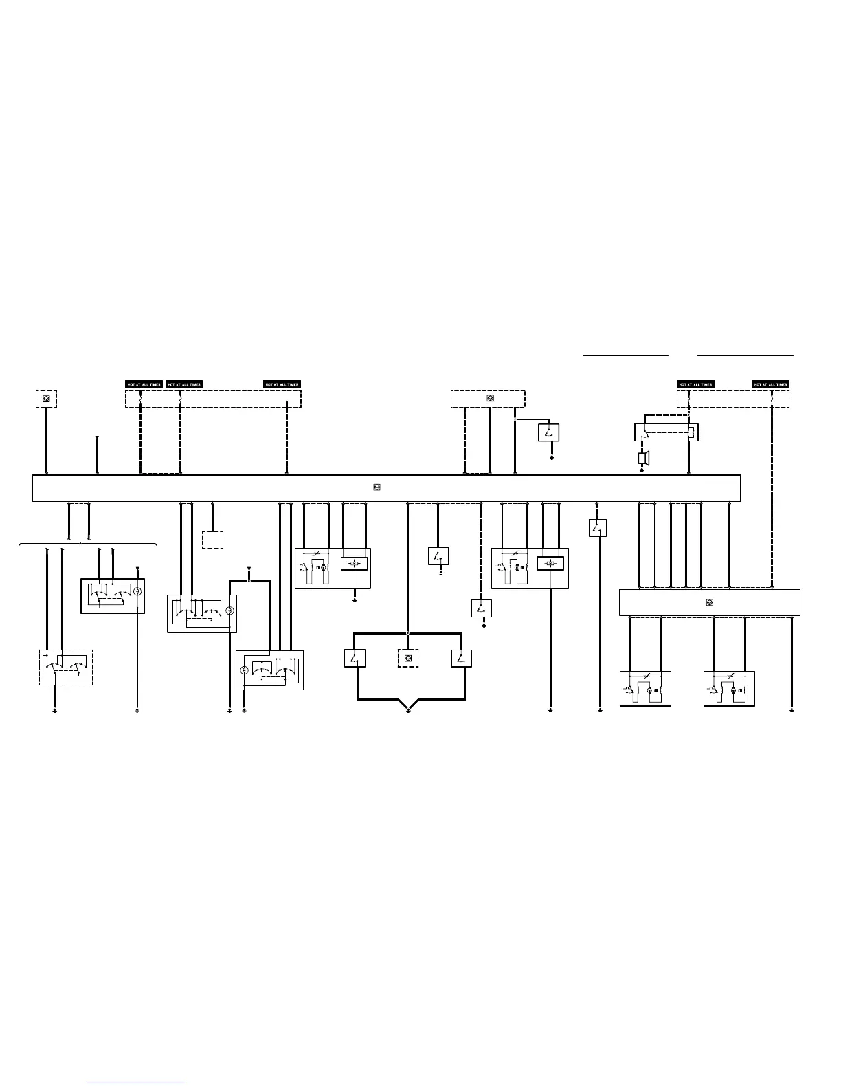
B C
E 15
E
04/99
6100.0b
1998
C
3
6 2
F14
30A
B
A104
BODY
ELECTRONICS
CONTROL
MODULE
(ZKE IV)
M23
PASSENGERS
WINDOW MOTOR
M99
RIGHT REAR
WINDOW MOTOR
S129y
RH REAR DOOR
(CONSOLE)
POWER WINDOW
SWITCH
START
1240.0
P90
FRONT POWER
DISTRIBUTION BOX
F19
30A
A5
RELAY MODULE
15 F
8F54
M98
LEFT REAR
WINDOW MOTOR
32
20 C17167 1
1311101912
S13
PASSENGERS
DOOR JAMB
SWITCH
D
M21
DRIVERS WINDOW
MOTOR
S14
DRIVERS DOOR
JAMB SWITCH
D
92471482313
S126y
DRIVERS POWER
WINDOW SWITCH
93
S40y
CENTRAL POWER
WINDOW SWITCH
LIGHT SWITCH
DETAILS
6300.0
89
S41y
LH REAR DOOR
POWER WINDOW
SWITCH (DOOR)
12 A
B
F33
10A
12
8
5133.1-02
5133.1-03
5133.1-01
5133.1-03
P90
FRONT POWER
DISTRIBUTION BOX
18
5133.1-04
6575.2-01
4
C17
N12w
ANTITHEFT
CONTROL MODULE
(ALPINE)
6575.2-00
5133.1-04
5133.1-00
5133.1-05 5133.1-05
5133.1-05
X10182
X13252
X13253
X13254
X13255
A =
B
=
C
=
D
=
E
=
X13258
F =
D1
M22
RIGHT REAR
WINDOW MOTOR
M20
LEFT REAR
WINDOW MOTOR
TWODOOR
CONVERTIBLEFOURDOOR
7C
F47
15A
A7
K108
HORN RELAY
(ALPINE)
LIGHT SWITCH
DETAILS
6300.0
S130
CHILD PROTEC-
TION CONTROL
(CONSOLE)
5133.1-02
10
5
FOURDOOR
A12
SUPPLEMENTAL
RESTRAINT
SYSTEM CONTROL
MODULE
A
4E
10
D
82
D
X2
S48
DRIVERS DOOR
HANDLE SWITCH
6575.2-00
5133.1-02
S128y
LH REAR DOOR
(CONSOLE)
POWER WINDOW
SWITCH
S127y
PASSENGERS
POWER WINDOW
SWITCH
67
5133.1-00
6575.2-01
6575.2-01
6330.3-04
S125
LEFT REAR DOOR
CONTACT
N12w
ANTITHEFT
CONTROL MODULE
(ALPINE)
S124
RIGHT REAR DOOR
CONTACT
6575.2-01
6330.3-04
6575.2-01
6330.3-04
3234.0-01
6575.2-02
H1w
ANTITHEFT HORN
(ALPINE)
5120.0
E48
DOOR LOCK
HEATER
3B
CENTRAL BODY ELECTRONICS (ZKE IV)

Table of Contents

Related product manuals