EasyManua.ls Logo

BMW E36 - Page 203

BMW E36
386 pages
Print Icon
To Next Page IconTo Next Page
To Next Page IconTo Next Page
To Previous Page IconTo Previous Page
To Previous Page IconTo Previous Page
Loading...
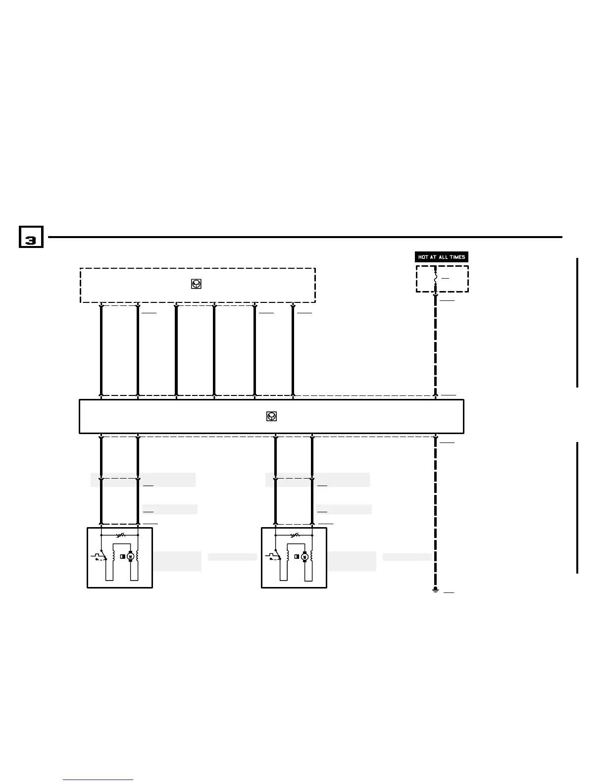
M22
RIGHT REAR
WINDOW MOTOR
M20
LEFT REAR
WINDOW MOTOR
12
X13254
20X13255 15
11
3
1
1
BMW
CENTRAL BODY ELECTRONICS (ZKE IV)
04/99
6100.0Ć
1998
04
2.5 BL/GN
2
1
A104
BODY
ELECTRONICS
CONTROL MODULE
(ZKE IV)
BMW
.5 SW/GR
7
2.5 SW/GE
2 X13256
.5 SW/RT
M98
LEFT REAR
WINDOW MOTOR
9
A5
RELAY MODULE
16
.5 BL/GE .5 SW/RT
10
.5 WS/RT
17
.5 GN/RT
X13253
13
5
2.5 BL/RT
4
1
2.5 WS/GE
2
X13257
M99
RIGHT REAR
WINDOW MOTOR
8 X13258
P90
FRONT POWER
DISTRIBUTION BOX
F19
30A
X1325815
FUSE DETAILS
0670.3
X495
GROUND
DISTRIBUTION
0670.4
FOURDOOR
5
7
2.5 BL/GN 2.5 SW/GE
FOURDOOR FOURDOOR
X720 FOURDOOR
X273
FOURDOOR
5
7
X274
18 X10016
X714 FOURDOOR
2.5 BL/RT
2.5 WS/GE

Table of Contents

Related product manuals