EasyManua.ls Logo

BMW Z3 E37 1998 - Page 121

BMW Z3 E37 1998
347 pages
Print Icon
To Next Page IconTo Next Page
To Next Page IconTo Next Page
To Previous Page IconTo Previous Page
To Previous Page IconTo Previous Page
Loading...
paragon.myvnc.com
BMBMWBMWBMW
Z3
ENGINE CONTROL
SYSTEM (DME M5.2,
4CYLINDER M44)
1210.20
04/99
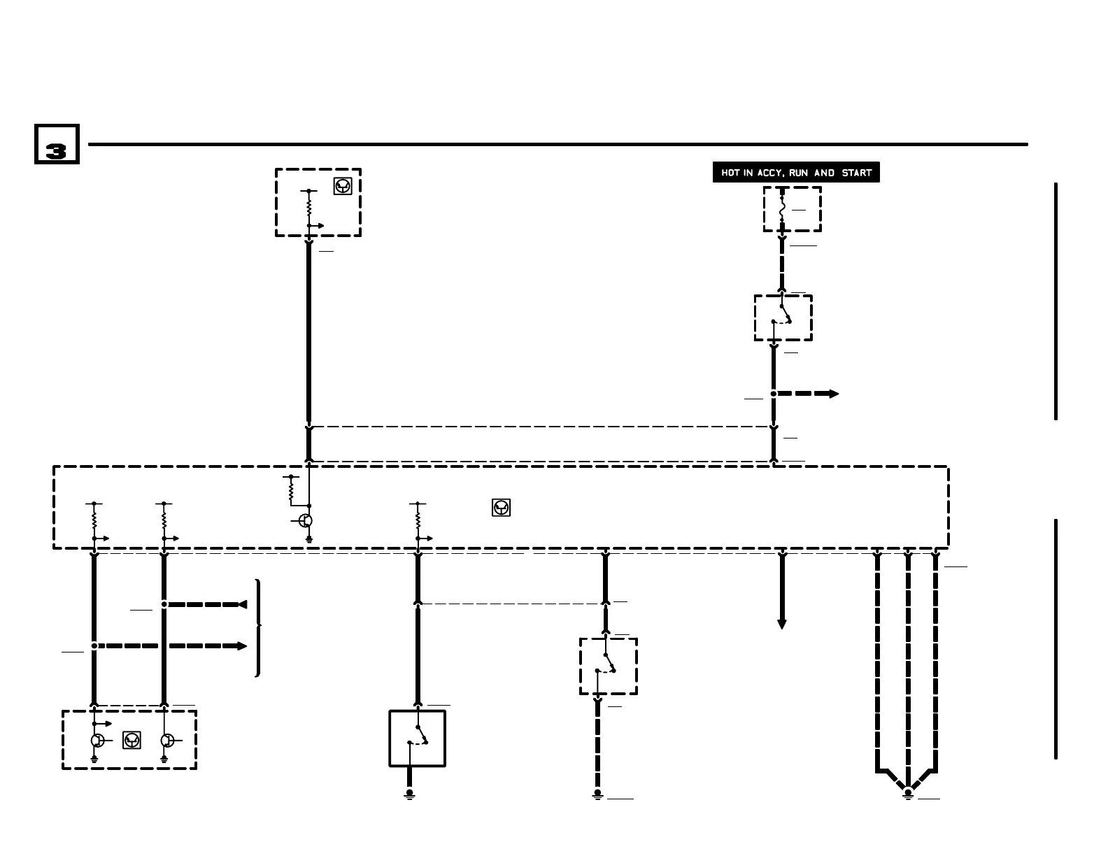
ELECTRONIC TRANSMISSION CONTROL (EGS A4S 270R)
2460.2Ć
1998
06
15
A8500
TRANSMISSION
CONTROL MODULE
(EGS)
18
X8507
1
17
S8507
KICKDOWN
SWITCH
1) NORMAL
2) ACCELERATOR
PEDAL FULLY
DEPRESSED
.75 GR/GE
.75 SW
634
GROUND
DISTRIBUTION
0670.4
X69
A6000
ENGINE CONTROL
MODULE (DME)
36
46
.5 SW/BL
80
40
.5 SW
X8500
2888
.5 WS/VI
TXD
10
.5 BL/RT
25
25
X16
5
A2w
INSTRUMENT
CLUSTER
.5 GR/BR
.5 GR/BR
X8500
DATA LINK
0670.5
X6000
TD
X8015
AC
X8056
.5 SW
.5 SW/BL
X6912
30
3131
12
11
48
S30
BRAKE LIGHT
SWITCH
3) BRAKE PEDAL
DEPRESSED
(TEST)
4) BRAKE PEDAL
RELEASED
(NORMAL)
X783
43
X784
.5 BR/GR
.5 BR/GR
GROUND
DISTRIBUTION
0670.4
30 30
31
X181
P90
FRONT POWER
DISTRIBUTION BOX
F46
15A
X1001832
S30
BRAKE LIGHT SWITCH
1) BRAKE PEDAL
RELEASED
2) BRAKE PEDAL
DEPRESSED
X781
12
X782
.75 BL/RT
1.5 BL/RT
FUSE DETAILS
0670.3
X6454
15
BRAKE LIGHTS
6325.0
X18170
4CYLINDER

Related product manuals