EasyManua.ls Logo

bora X BO - Removing the Frame Spacer; Fitting Additional Frame Spacers

bora X BO
36 pages
Print Icon
To Next Page IconTo Next Page
To Next Page IconTo Next Page
To Previous Page IconTo Previous Page
To Previous Page IconTo Previous Page
Loading...
Installation
EN
26 bora.com
Installation depth with one frame spacer
Fig.9.4
Installation dimensions with 1 frame spacer
Installation depth with 2 frame spacers
Fig.9.5
Installation dimensions with 2 frame spacers
9.5.1
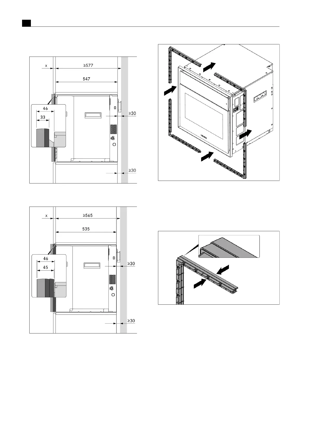
Removing the frame spacer
u
Remove the 4 parts of the frame spacer from the corners of the
inlay frame by hand.
Fig.9.6
Removing the frame spacer
9.5.2
Fitting additional frame spacers
u
Remove the frame spacer from the appliance.
u
Attach the corners of the 2 frame spacers to each other and then
join all of the corners together.
Fig.9.7
2 frame spacers
u
Fit the frame spacers to the inlay frame.

Table of Contents

Related product manuals