EasyManua.ls Logo

Bosch FPA-5000 - Page 236

Bosch FPA-5000
326 pages
To Next Page IconTo Next Page
To Next Page IconTo Next Page
To Previous Page IconTo Previous Page
To Previous Page IconTo Previous Page
Loading...
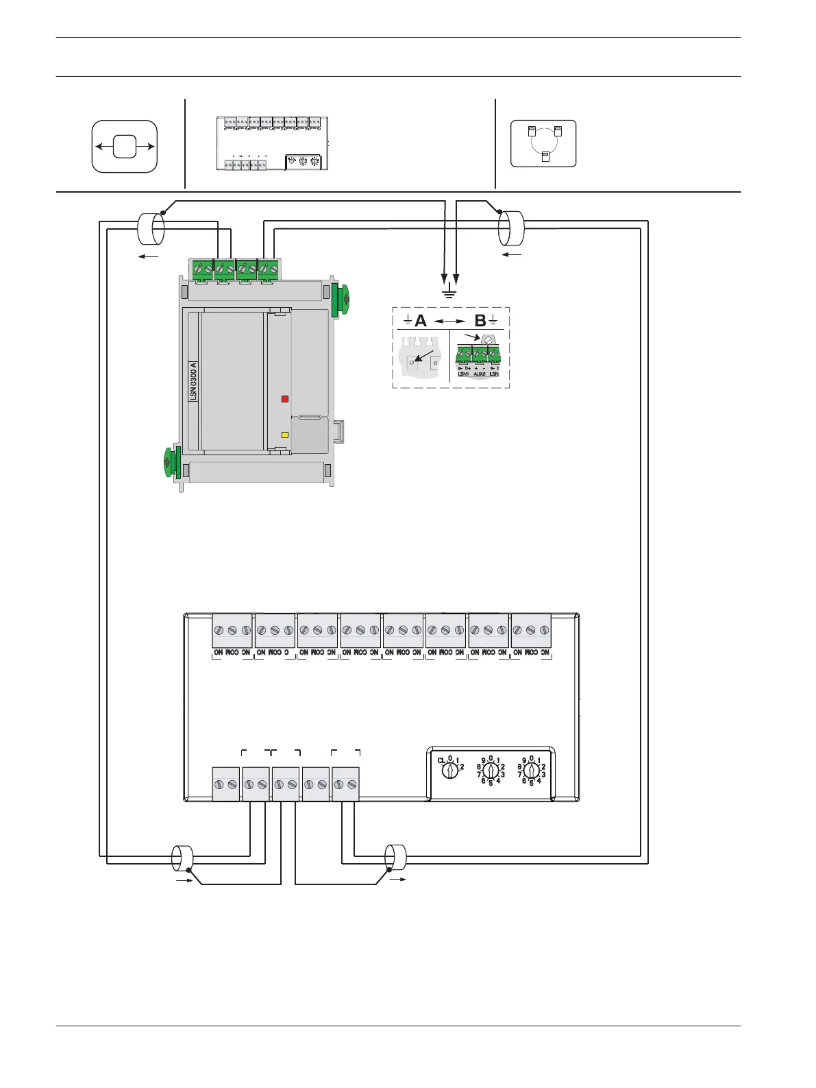
LSN 0300 A
AUX1 LSN1 AUX2 LSN2
+ – a– b+ + – a– b+
FLM-420-RLV8-S
O N M O C C N
+ 2 b - 2 a V 0 U + D L E I H S + 1 b - 1 a V 0 U +
N S L
1
L E R
O N M O C C N
2
L E R
O N M O C C N
3 L E R
O N M O C
C
N
4
L E R
O N M O C C N
5 L E R
O N
M
O
C
C N
6 L E R
O N M O C
C N
7 L E R
O N M O C
C N
8 L E R
N S L N S L
FLM-420-RLV8-S
O N
M
O
C
C N
+ 2 b
-
2
a
V 0
U
+
D
L E
I
H S + 1 b - 1 a
V 0
U +
N
S L
1
L
E R
O N
M
O
C
C
N
2
L
E
R
O N
M
O
C
C N
3 L E R
O
N
M
O
C
C
N
4
L
E
R
O
N
M
O
C C N
5
L
E
R
O N
M
O
C
C
N
6
L E
R
O
N
M
O
C
C
N
7
L
E
R
O
N
M
O
C
C
N
8 L
E
R
N S
L
N
S L
FLM-420-RLV8-S
236 en | Wiring Modular Fire Panel
2016.07 | 12.6 | F.01U.009.201 Wiring Guide Bosch Sicherheitssysteme GmbH

Other manuals for Bosch FPA-5000

Related product manuals