EasyManua.ls Logo

Buell 2003XB9S - Starting Circuit

Buell 2003XB9S
588 pages
Print Icon
To Next Page IconTo Next Page
To Next Page IconTo Next Page
To Previous Page IconTo Previous Page
To Previous Page IconTo Previous Page
Loading...
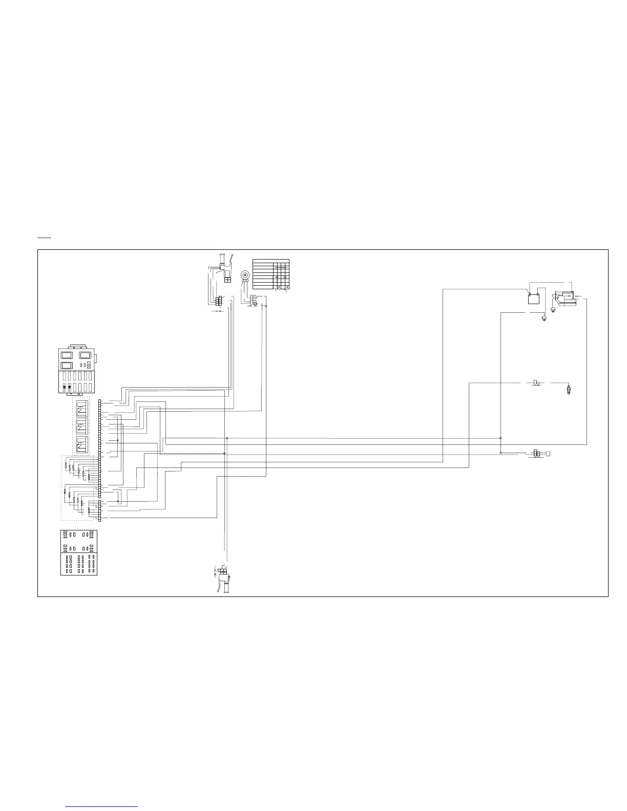
2003 Buell XB9S: Electrical B-21
HOME
2003 XB9S Starting Circuit
ISO
IGNITION
START
KEY SWITCH
ISO
ISO
[95A]
[95B]
[22A]
[33A]
[22B]
[33B]
TOP VIEW
[131B]
[131A]
[133B]
[133A]
[GRD2]
[128B]
[128A]
BATTERY
BATTERY CABLE
MOTOR
SOLENOID
STARTER
STARTER
TO SIDESTAND SWITCH
22
TN/W
11
BK
PIN
BRAKE
TO RH CONTROLS
44
GY/O
GY
33
W/BK
W/BK
W/BK
2
2
2
2
W/BK
1
1
1
1
BK/R
BK/R
PIN
TO CLUTCH
SWITCH
2
2
BK
1
1
TN/LTGN
PIN
4
D
R
R
3
C
R/BK
R/BK
2B
1A
R
R
PINPIN
O
ON
WIRE COLOR
CONNECTING
WIRE SECTION mm
R
1
2
O
OFF
R/BK
USER +
USER +
1
++
OOO
LOCK
R/GY
1
O
PARK
R
BATTERY
BATTERY
1
ADCB
KEY POSITION
WIRING DIAGRAM
TO IGNITION SWITCH
IGNITION
KEY SWITCH
START
1
10
11
3
8
13
4
7
14
5
6
15
9
2
19
16
20
19
18
17
BK
15
R
14
R/BK
11
13
12
R/BK
11
10
BK/R
9
TN/W
9
TN/W
7
8
GN
6
R/BK
5
GY/O
5
3
GY/O
4
2
TN/LT.GN
1
W/BK
1
W/BK
44
44
R
43
42
41
40
40
39
38
R
R
37
36
35
34
34
TN/LT.GN
TN/LT.GN
TN/W
TN/LT.GN
TN/Y
R/Y
33
32
31
GY/O
30
29
28
27
26
25
24
23
22
21
R/BK
11
TN/Y
TN/Y
PIN
TO NEUTRAL SWITCH
BK
BK
GN
Accessory
Accessory 7.5
Key Switch
Key Switch 15
Lights
Lights 15
ECM
Battery
Battery 30
ECM 7.5
Spare
Spare 7.5
Spare
Spare 15
Ignition
Ignition 15
Cooling Fan
Fan 7.5
Brake/Horn
Horn 15
Diode #1
Diode #1
Diode #2
Diode #2
15A
15A
15A
15A
15A
7.5A
7.5A
30A
7.5A
7.5A
21
22
23
24
25
26
27
28 29
30
31 32
33 34 35 36
37
38
39
40 41 42
43
44
12
3
4
5
6
78
9
10
11
12
13
14
15
16
17
18
19 20
IGN
LOCK
SWITCH
GROUND
SWITCH
TO
bs0012xx

Table of Contents

Related product manuals