EasyManua.ls Logo

BUSCH DUPLEX - Page 35

BUSCH DUPLEX
44 pages
Print Icon
To Next Page IconTo Next Page
To Next Page IconTo Next Page
To Previous Page IconTo Previous Page
To Previous Page IconTo Previous Page
Loading...
13 | Dimensions sheets
0870S03226_VRD 2072-3108_-0000_IM_en
35 /
44
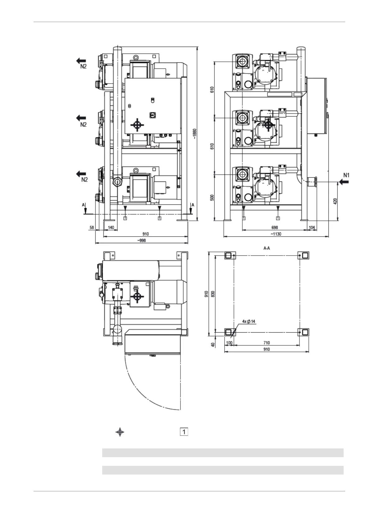
Dimensions of the vacuum system TRIPLEX VRD 3108
Fig. 20 : Dimensions of the vacuum system TRIPLEX VRD 3108
Center of
gravity
Lifting point
Pos. Designation Connection Standard
N1
Gas inlet
G 3“ / G 2“, female thread
ISO 228-1
N2 Gas outlet G 2", female thread ISO 228-1
Tab. 3: Connections of the vacuum system TRIPLEX VRD 3108