EasyManua.ls Logo

Calorex Pro-Pac PPT45EHC - Page 41

Calorex Pro-Pac PPT45EHC
104 pages
Print Icon
To Next Page IconTo Next Page
To Next Page IconTo Next Page
To Previous Page IconTo Previous Page
To Previous Page IconTo Previous Page
Loading...
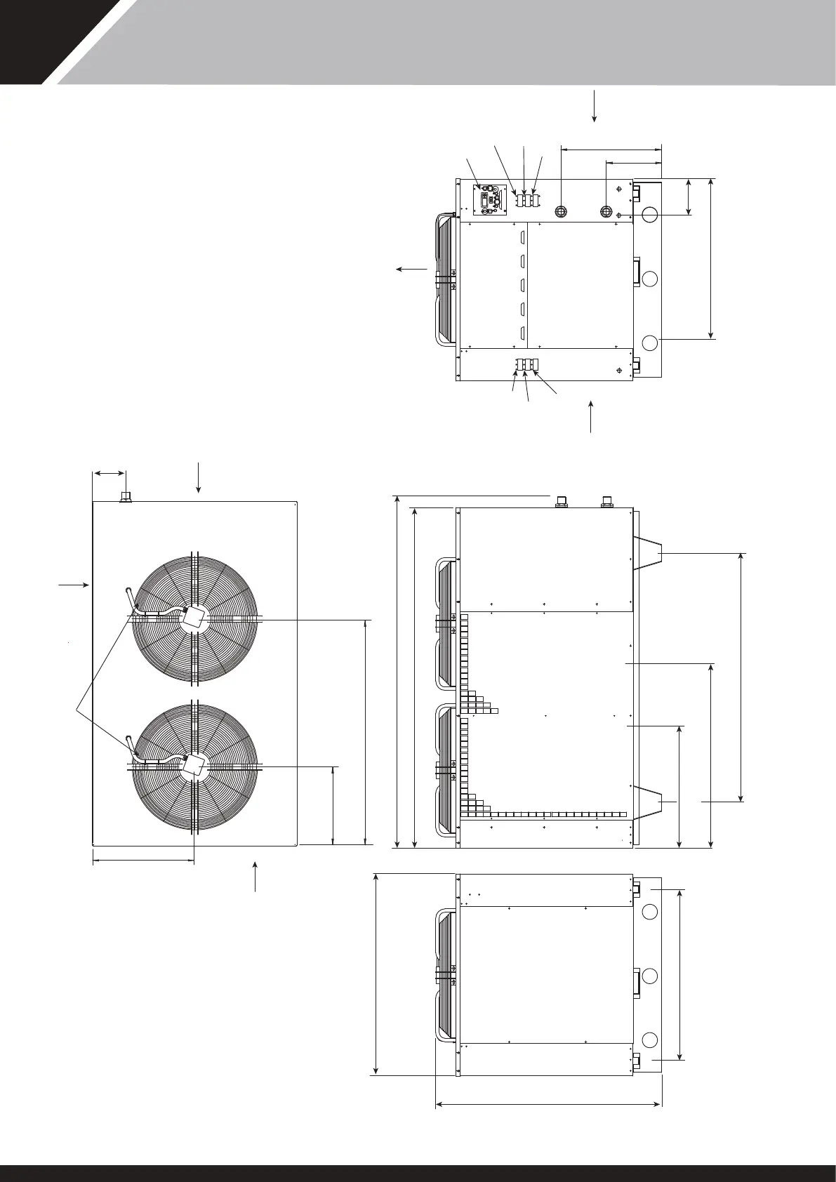
Pro-Pac 90
DIMENSIONS IN mm
ISSUE 2
ALLOW 500mm CLEARANCE FOR
SERVICE PANELS
WATER CONNECTIONS 1½" BSPM
CONDENSATE 1½" BSPM
SERVICE
PANEL
AIR OFF
AIR ON
CONSOLE
HP SWITCH
LP SWITCH
CHILL LIMIT
SWITCH
HP SWITCH
LP SWITCH
CHILL LIMIT
SWITCH
AIR ON
SERVICE
PANEL
1350
SERVICE
PANEL
1190
2065
2006
U
P
21
10
AMBER
RED
RED
AMBER
AMBER AMBER
CLEAR
GREEN
GREEN
RED
*1470
*1105
*FIXING CENTRES TO SECURE MACHINE
987
CONDENSATE POSTION (BASE)
751
CONDENSATE POSTION
(BASE)
1099
CONDENSATE POSTION
(BASE)
FAN 1
FAN 2
SERVICE
PANEL
NOMINAL FAN DIAMETER 730
596
458
1321
SERVICE
PANEL
SERVICE
PANEL
CONDENSATE
POSITION
(BASE)
324
591
200
195
WATER
OUT
WATER IN
41
SD566250 ISSUE 35

Related product manuals